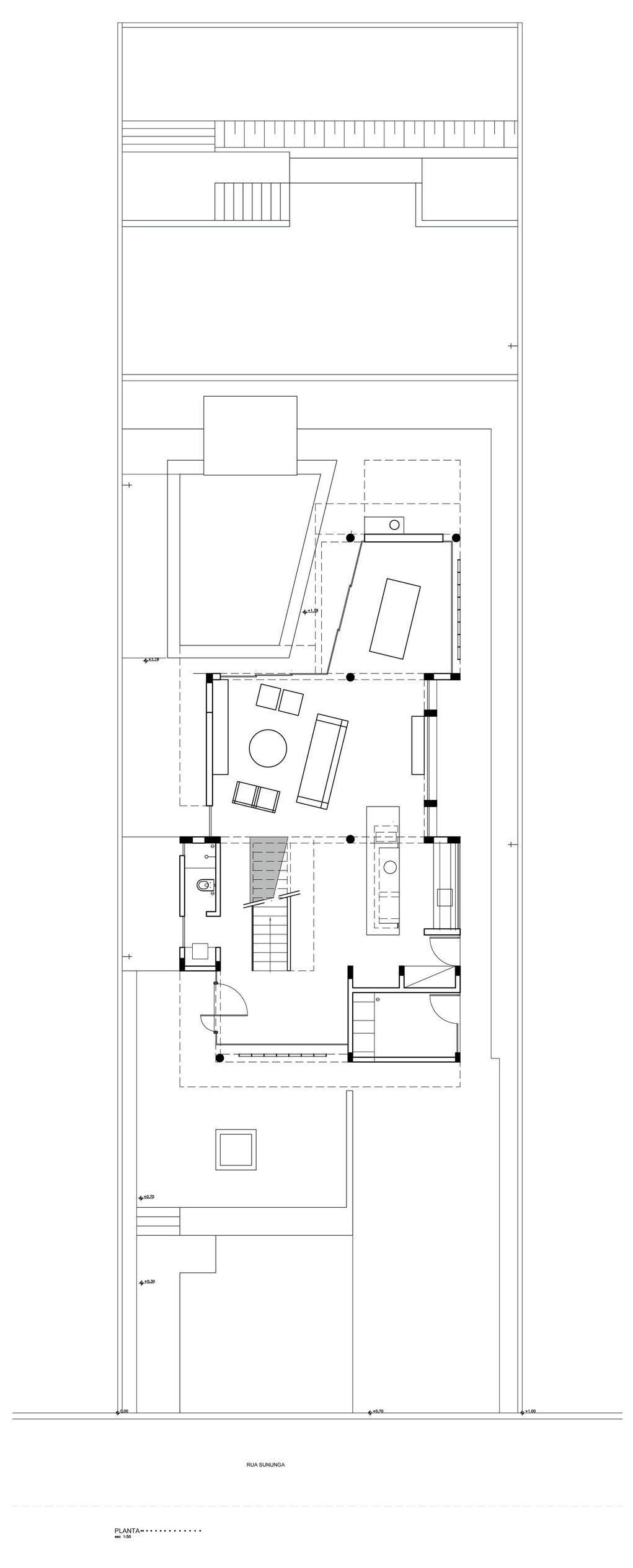
13/19 Images A Stylish Contemporary Beach House with White and Smooth Walls in São Sebastião, Brazil by Campanella Arquitetura (13)