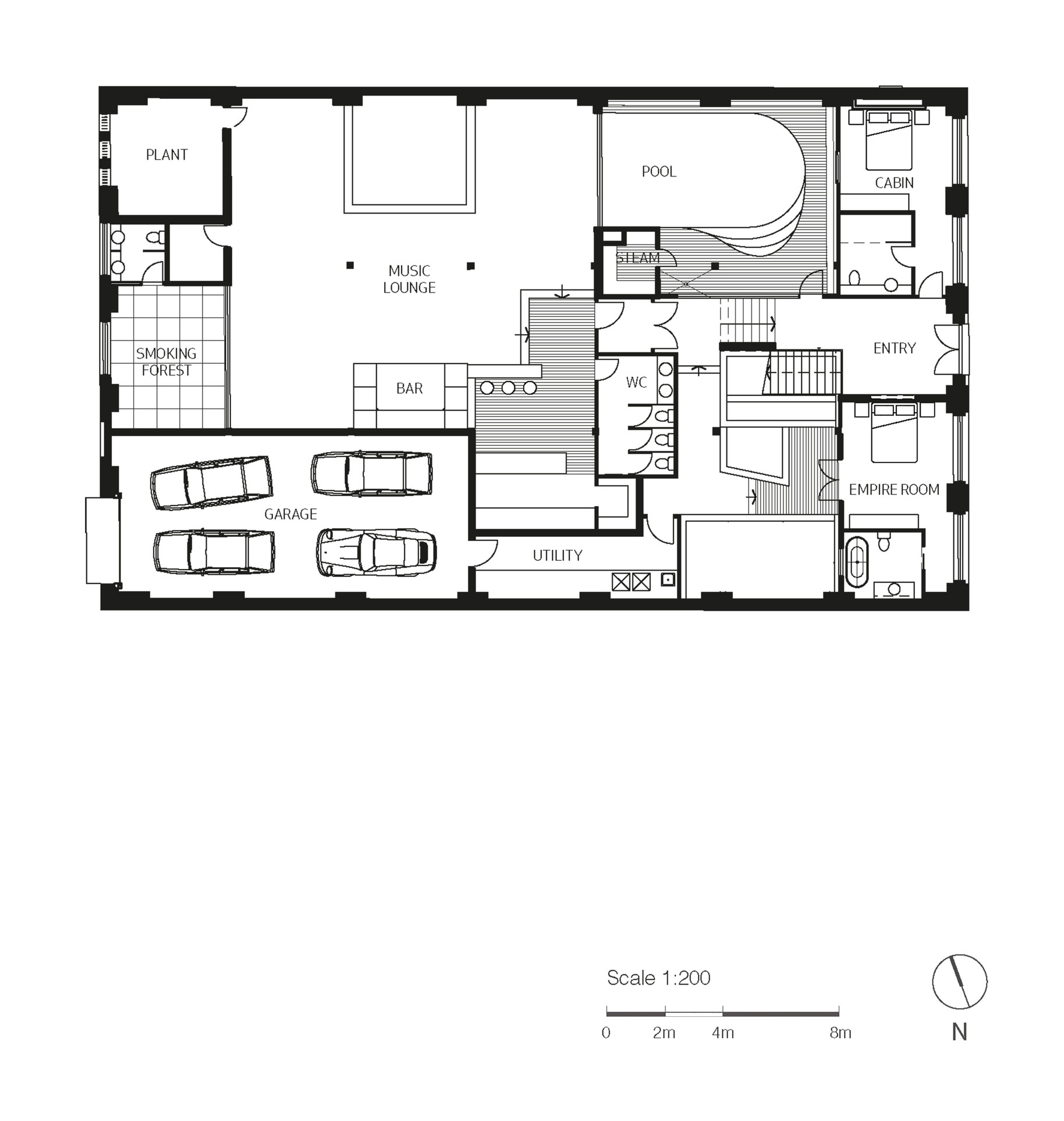
27/30 Images An Old Warehouse Transformed Into a Sophisticated Home in Sydney by Allen Jack+Cottier (27)