Inner City Warehouse by Allen Jack+Cottier
Innovative and cutting-edge, AJ+C’s Mancave design demonstrates how modelling and fabrication technologies are used to create a sophisticated bespoke retreat.
The space
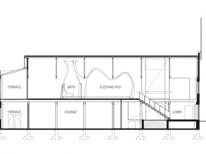
Part of the Surry Hills Warehouse, an AJ+C-designed home renovation project, Mancave is a sculptural carbon-fibre pod positioned on the warehouse’s upper floor. Featuring a semi-gloss finish of resin-faced foam, the cave is separated into two spaces.
The bedroom
A bed sculpted from the wall takes pride of place in the bedroom. A leather-clad floor and recessed LED lighting snake around the base of the room.
The ensuite
The ensuite, incorporating a shower area, built-in vanity, freestanding basins and bathtub, provides all the features of more traditional design. Conversely, the skylight exemplifies its originality, recreating the effect of a shaft of light filtering down through a canyon.
The design
As the warehouse’s central feature, the pod organises and informs the spaces around it, while providing a private cocoon for rest and privacy.
The House Design Project Information:
- Project Name: Inner City Warehouse
- Location: Sydney, Australia
- Project Year: 2015
- Type: Private Residence
- Area: 1060 m²
- Designed by: Allen Jack+Cottier
Photos by: Allen Jack+Cottier & Castle+Beatty
Related: A Bright Contemporary Waterfront Home Overlaps Stone and Glass Volumes in Cabin John
We recommend: A Contemporary House Perched on a Bluff and Surrounded by Dense Pine Forests in Guarda, Portugal
Try these: A Spacious and Sustainable Modern House Enhanced by the Wonderful Views of Nature in North Brabant
Related: A Stunning Contemporary Home with Two Large Cantilevers in Guadalajara, Mexico
Up next: An Exquisite Contemporary Home with Simple Shapes, Clean Lines and Transparency in Faenza, Italy
See also: A Cozy and Luminous Modern Home Full of Concrete and Wood Elements in Seattle
Read: A Trendy Contemporary Home Blends Indoor and Outdoor Spaces in Kifisia
What we thought: A Beautiful Contemporary Home Showcases Warm and Inviting Style in Pennsylvania
Read more: A Striking and Beautiful Geometric Home with Unique Angular walls in Meguro, Japan












