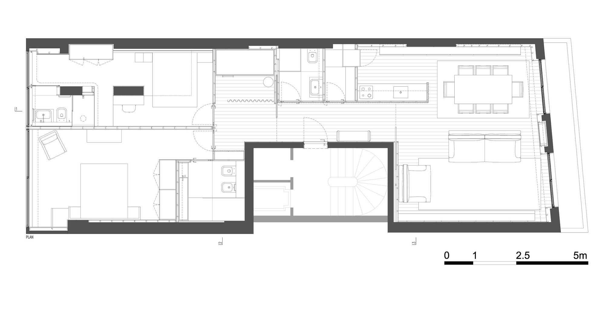
17/20 Images A Contemporary Seafront Apartment with Natural Wood Elements in Póvoa do Varzim by Pitagoras Group (17)