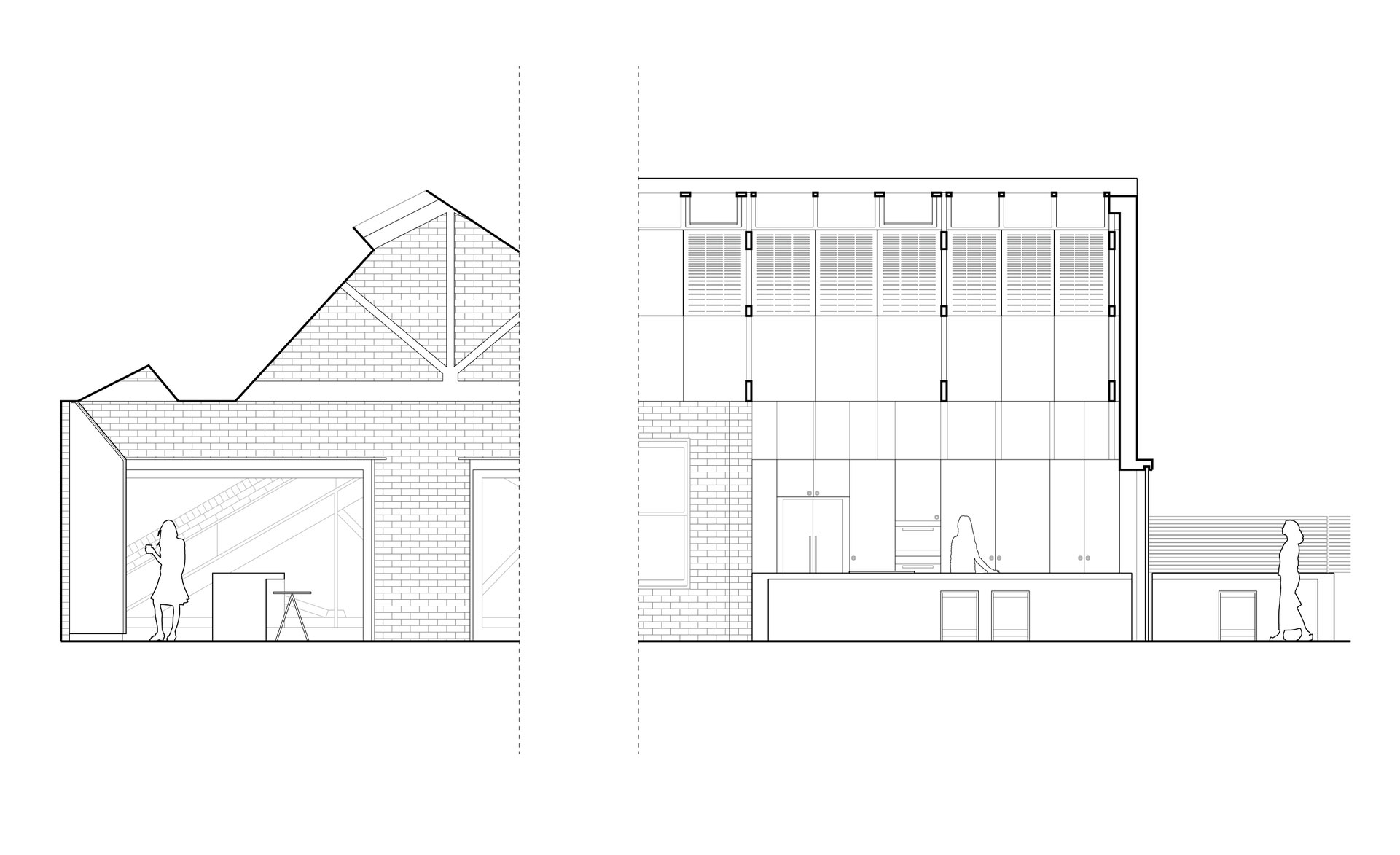
20/23 Images An Industrial Warehouse Converted into Light-Filled Home in Fitzroy, Victoria by Andrew Simpson Architects (20)