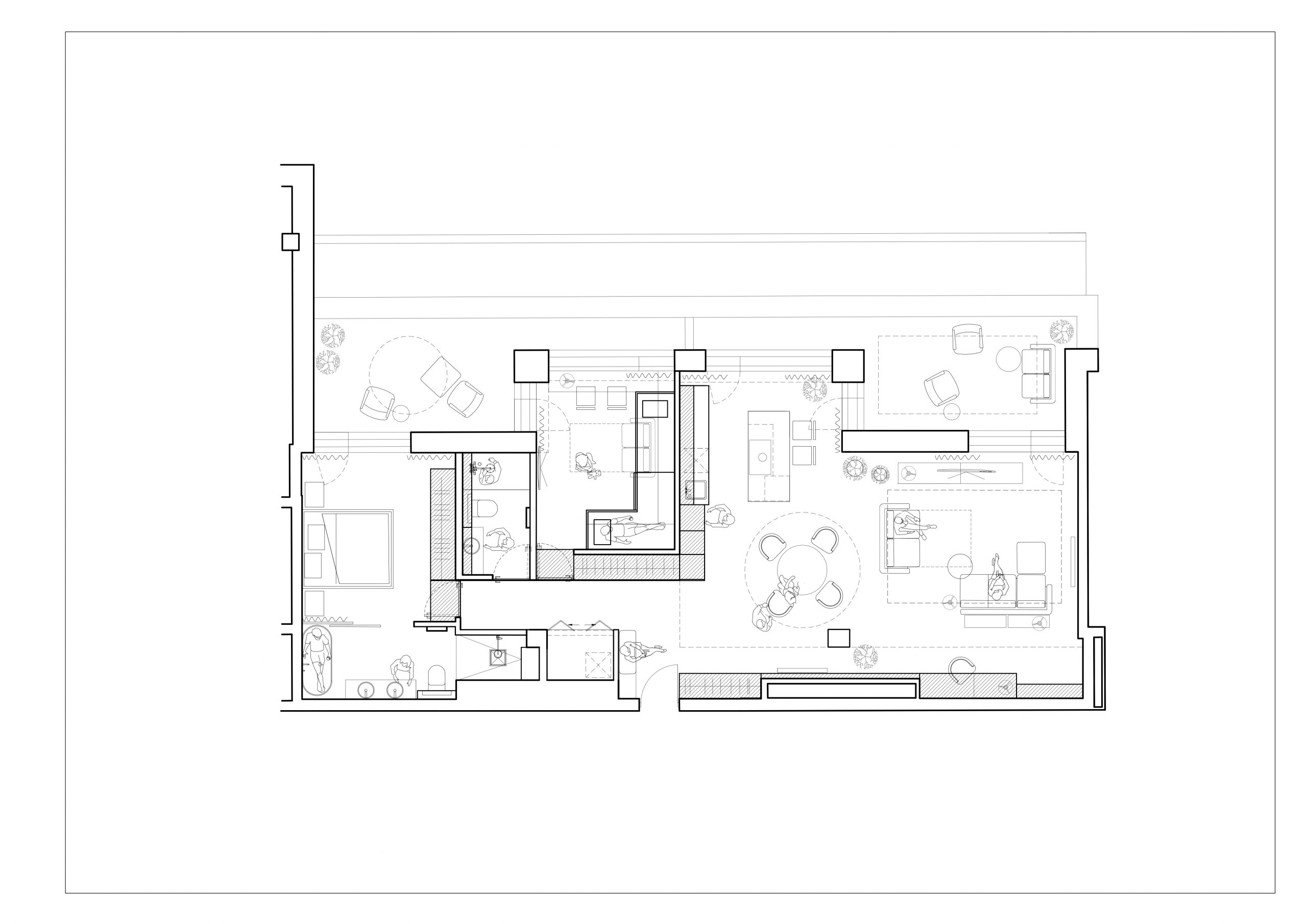
20/20 Images IDAS Interior Design Firm Designs a Stylish Contemporary Penthouse in Vilnius, Lithuania (20)