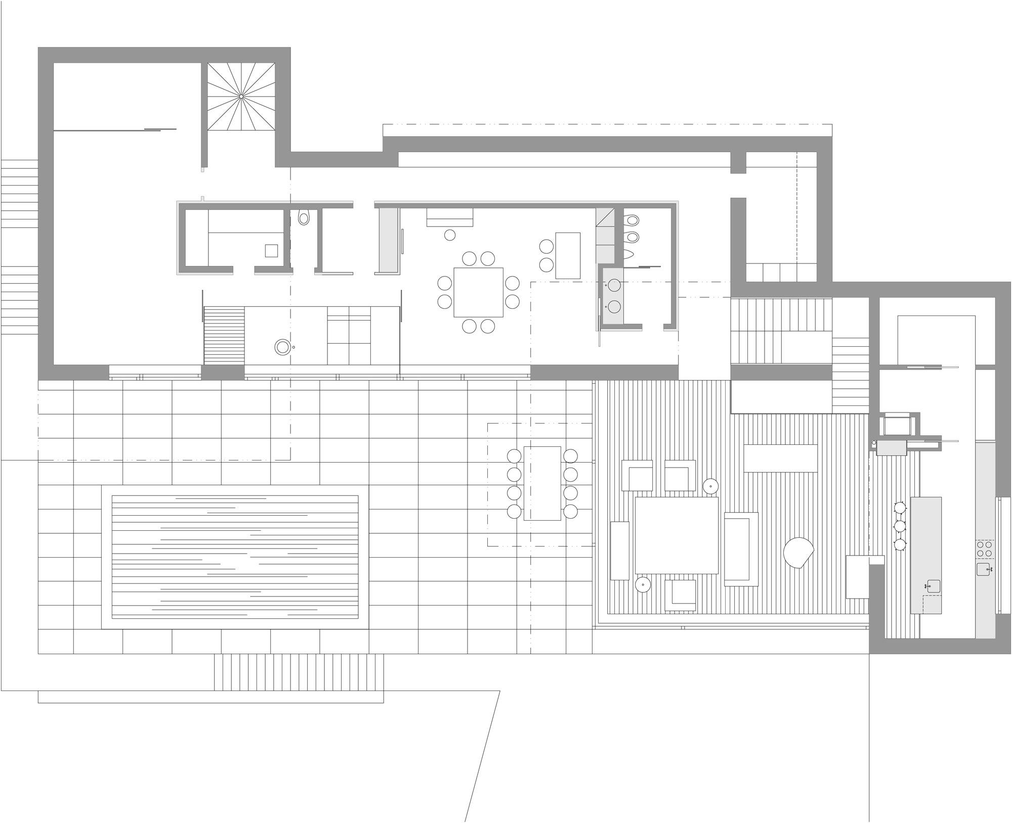
15/22 Images A Beautiful Modern House with Geometric White Exteriors in Děčín, Czech Republic by Studio Pha (15)