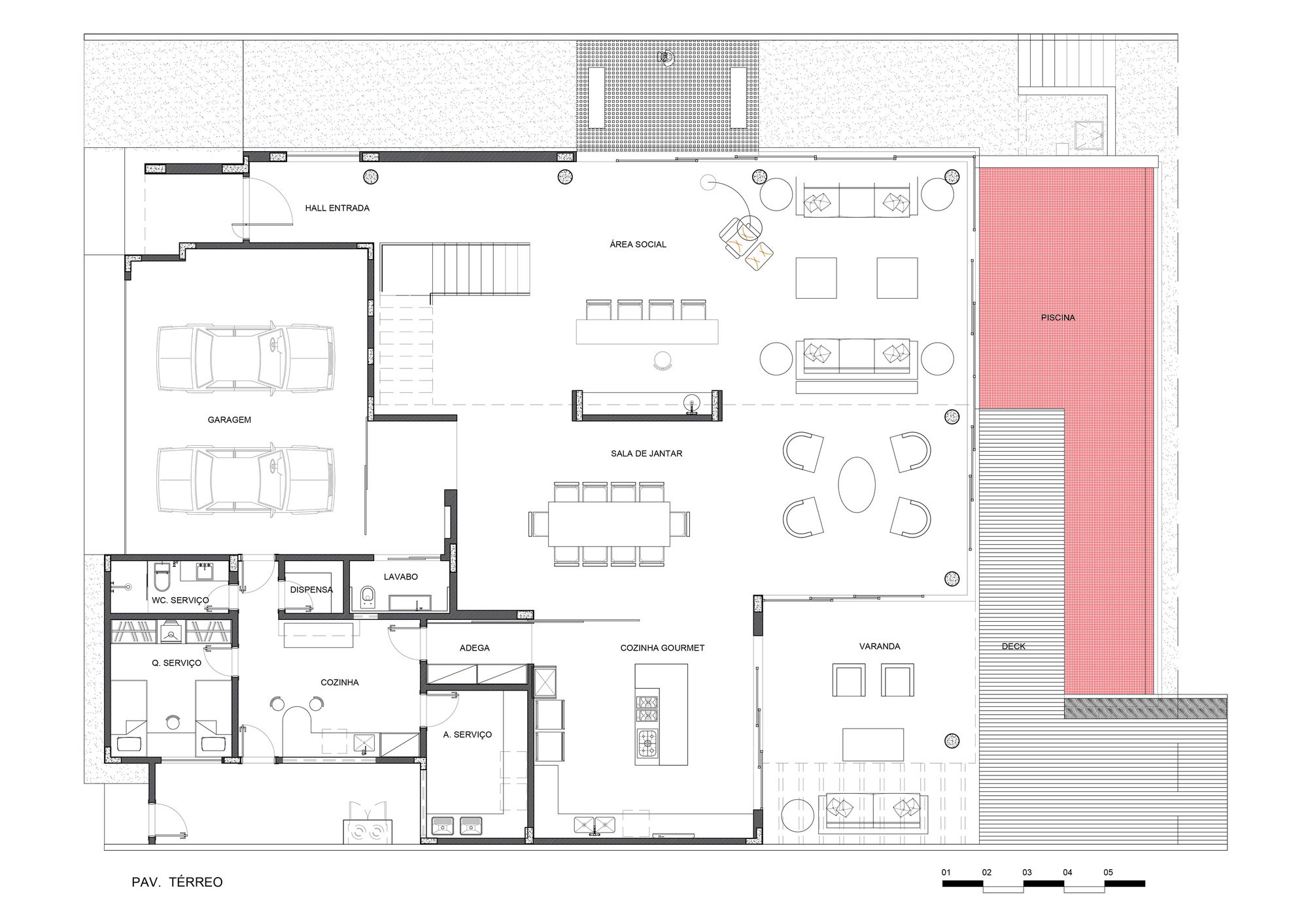
17/18 Images A Bright Contemporary Home with Geometric and Rough Concrete Facade in Brasilia by Architecture Ney Lima (17)