Home in Brasilia by Architecture Ney Lima
The house of architecture influenced by movements that emerged in the 60s – the same as the construction of Brasilia – has no such historical recovery by mere coincidence. The result was a request of residents who love the modernist style and one of the Brazil Capital and from the decision of the architect who chose to create a coherent work with the city, which today is the greatest living example of that school, that clashes with the local context.
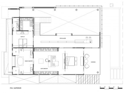
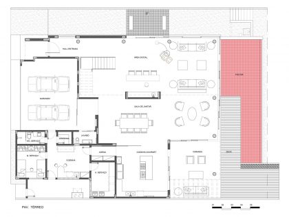
The house was delivered in 2008 and is located in Lago Sul region. In 570sqm residence takes shape from straight lines, sober volumes and timely use of coatings where the purity of the constructive elements are intentional.
A geometric box demarcates the rough concrete facade at the entrance to a sequence of concrete columns (35 cm diameter each) are reference to Oscar Niemeyer. Already in living area have one, a large panel (5.80 x 4 m) from Athos Bulcão, one of the last works he made for a particular clients.
Although there is a constant rescue the modernist school hangs a contemporary air through the house, not only by the choice of furniture, but also the integration of the environments where the play area and indoor environments become one convenient space when necessary and when the seal of spaces is done by large sliding glass doors, each leaf with 5.80 x 1.30 m, joined by white painted metal structure.
Besides the translucent elements and metal structures, another element stands out, this time in the leisure area where the pool was coated with bright red glass mosaic with white mortar. The color as well as heat the room is also a relaxed attractive for housing that is designed to get comfort with the friends of the owners.
Photos by: Architecture Ney Lima & Clausem Boniface
View more: ArchObraz Designs an Elegant Contemporary Home Among the Pines in Dnipro, Ukraine
Related: A Contemporary Home with Rustic Elements of Wood and Stone in Mexico
Here: A Snazzy Contemporary Home with Red Brick Facade in Brooklyn
Read also: A Stunning Contemporary Cantilevered Home in the Southern Part of France
Next: A Stylish and Unique Contemporary Home with Luxurious Vibe in Kuwait City
Check out: A Unique Modern Home with Sloping Green Roof and Split-Level Interior in Maldegem, Belgium












