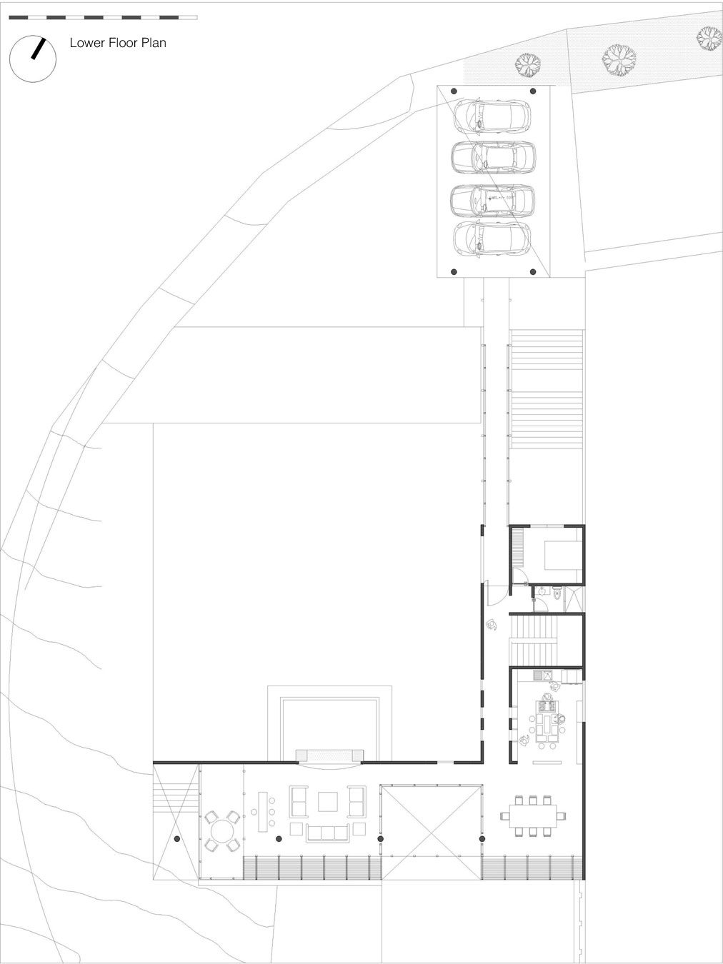
A Sustainable Contemporary Home with a Large L-Shaped Concrete Walls in Mexico

A Sustainable Contemporary Home with a Large L-Shaped Concrete Walls in Mexico by REC Arquitectura (18)
18/25 Images