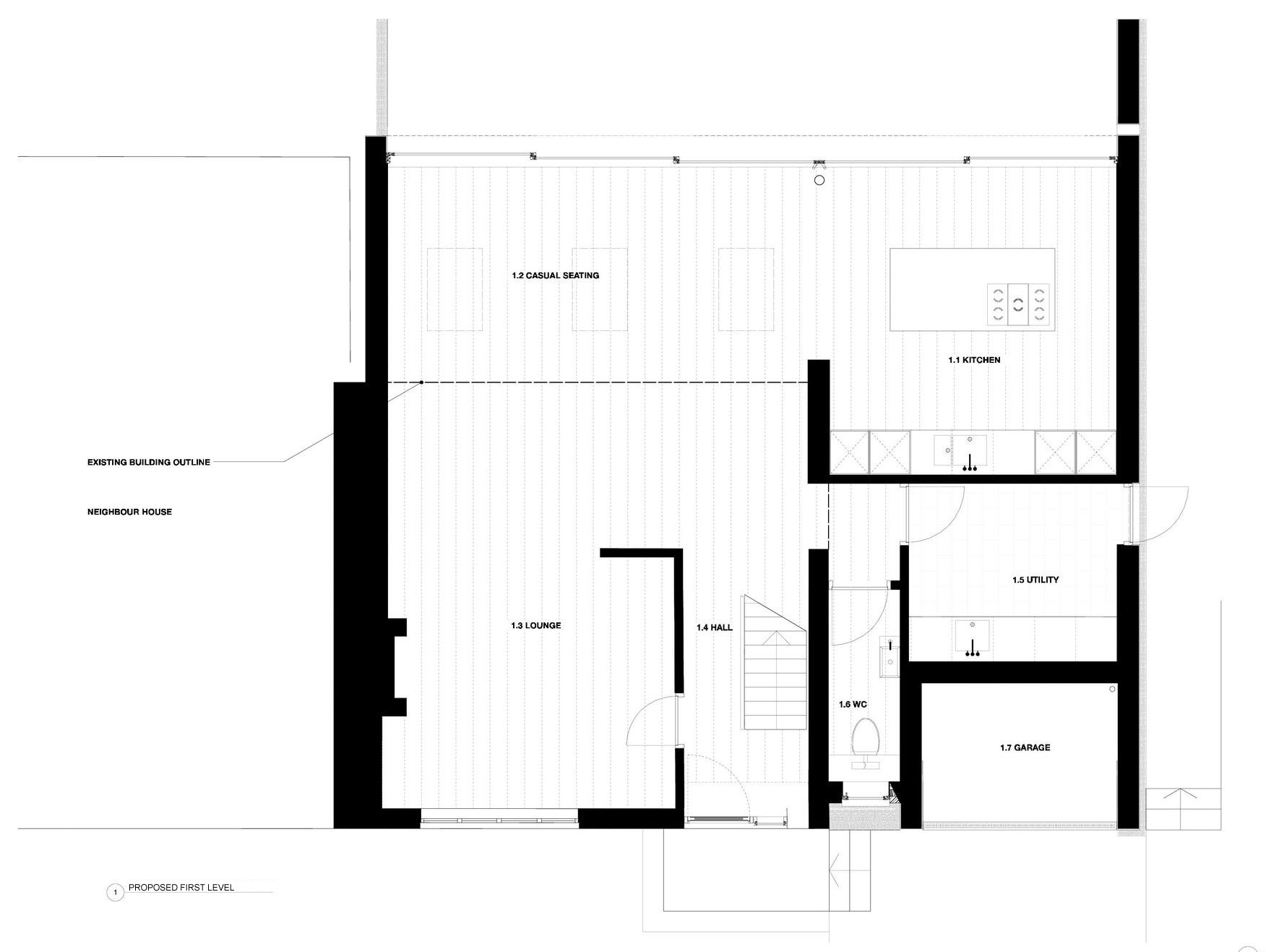
9/13 Images A Contemporary Extensions to a Luminous House with Brick Façade in Crawley by Adam Knibb Architects (9)