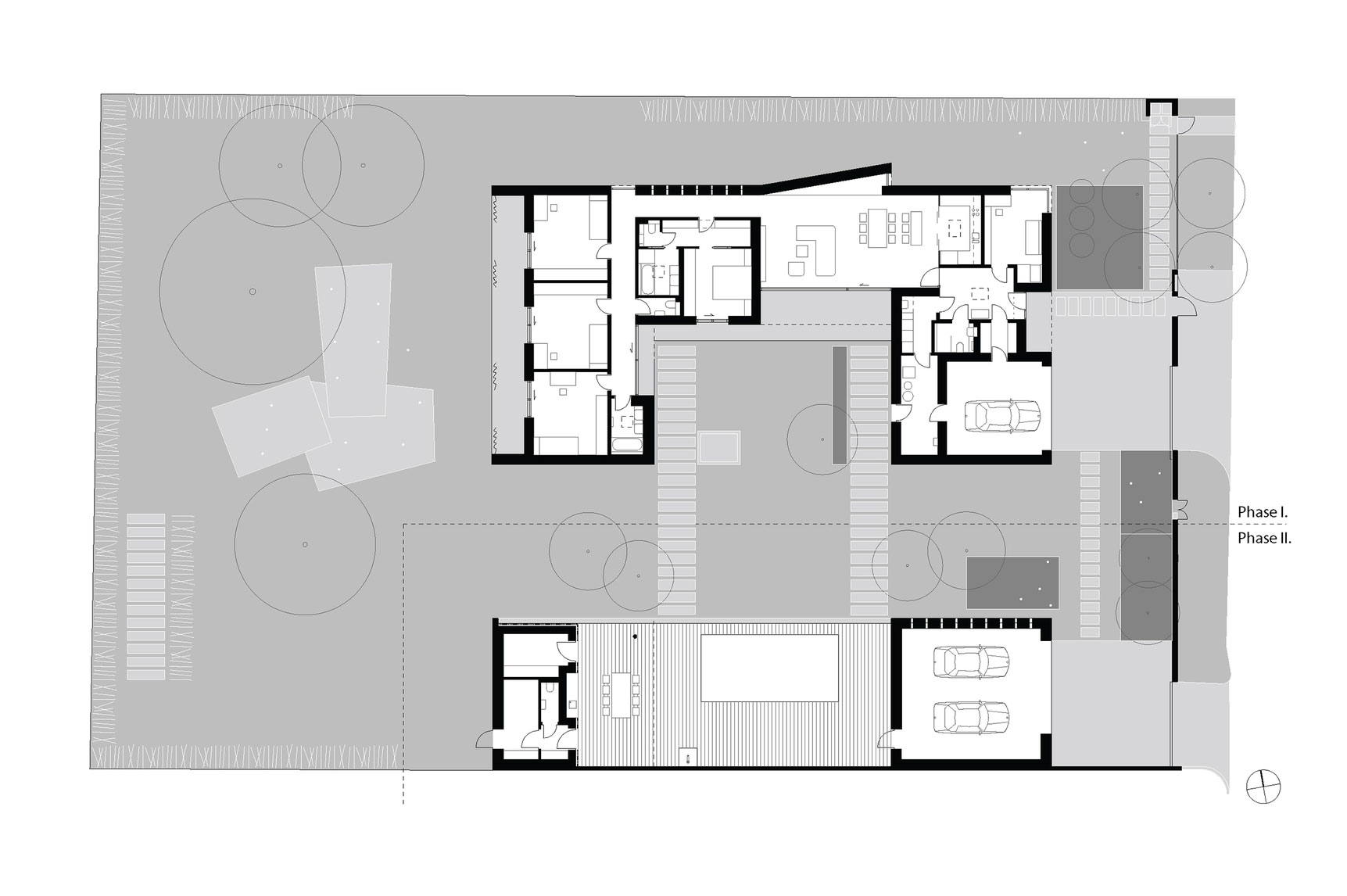
27/29 Images A Wide Contemporary Home with Tons of Clean and Natural Light in Slavonín, Czech Republic by JVArchitekt & KAMKAB!NET (27)