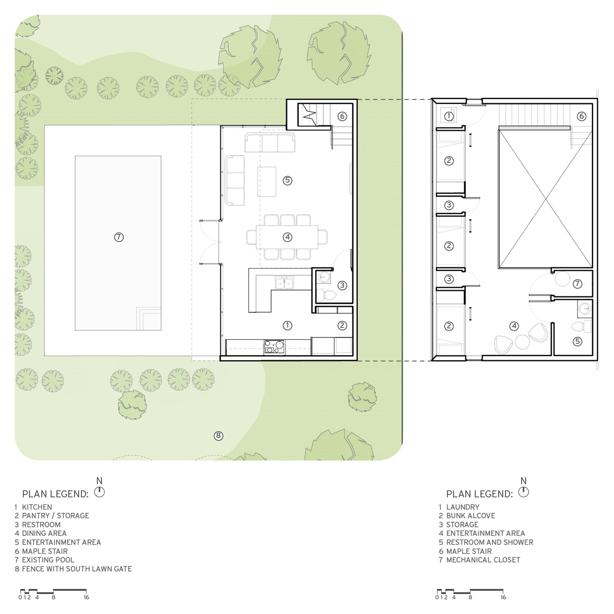
An Elegant Contemporary Pool House with Room to Sleep Six People in Springdale

An Elegant Contemporary Pool House with Room to Sleep Six People in Springdale by Marlon Blackwell Architect (13)
13/13 Images