A Functional and Tiny Apartment with Lots of Natural Light in Shanghai

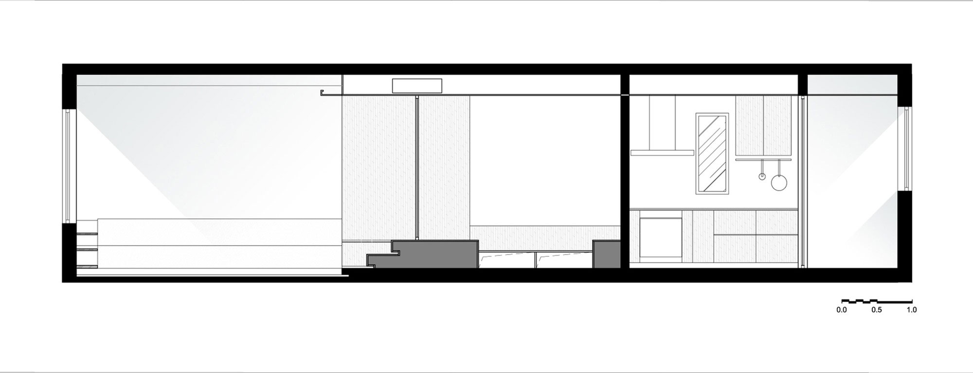
A Functional and Tiny Apartment with Lots of Natural Light in Shanghai by MoreDesignOffice (15)
15/19 Images

A Functional and Tiny Apartment with Lots of Natural Light in Shanghai by MoreDesignOffice (15)