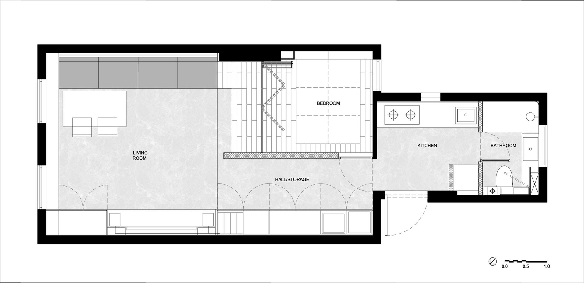
A Functional and Tiny Apartment with Lots of Natural Light in Shanghai

A Functional and Tiny Apartment with Lots of Natural Light in Shanghai by MoreDesignOffice (14)
14/19 Images