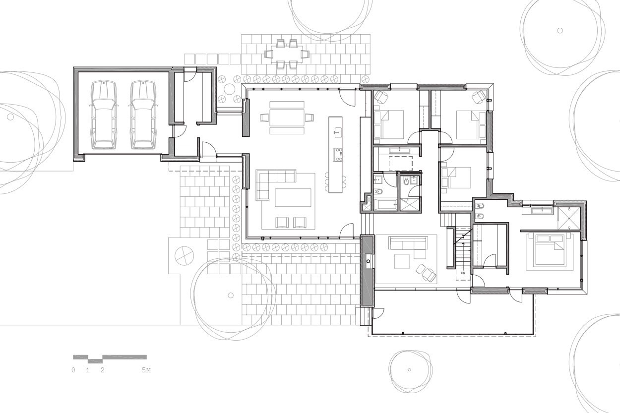
11/18 Images A Stylish Modern Dark Brick Home in the Lush Forests of Dundas, Ontario by Setless Architecture (11)