A Modern Reinterpretation of a Spacious and Traditional House in Otopeni, Romania

A Modern Reinterpretation of a Spacious and Traditional House in Otopeni, Romania by LAMA Arhitectura (27)
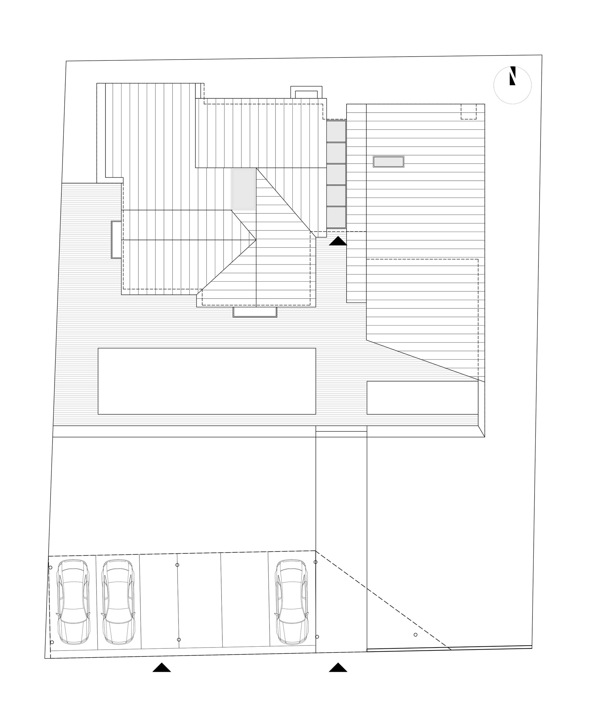
27/31 Images

A Modern Reinterpretation of a Spacious and Traditional House in Otopeni, Romania by LAMA Arhitectura (27)