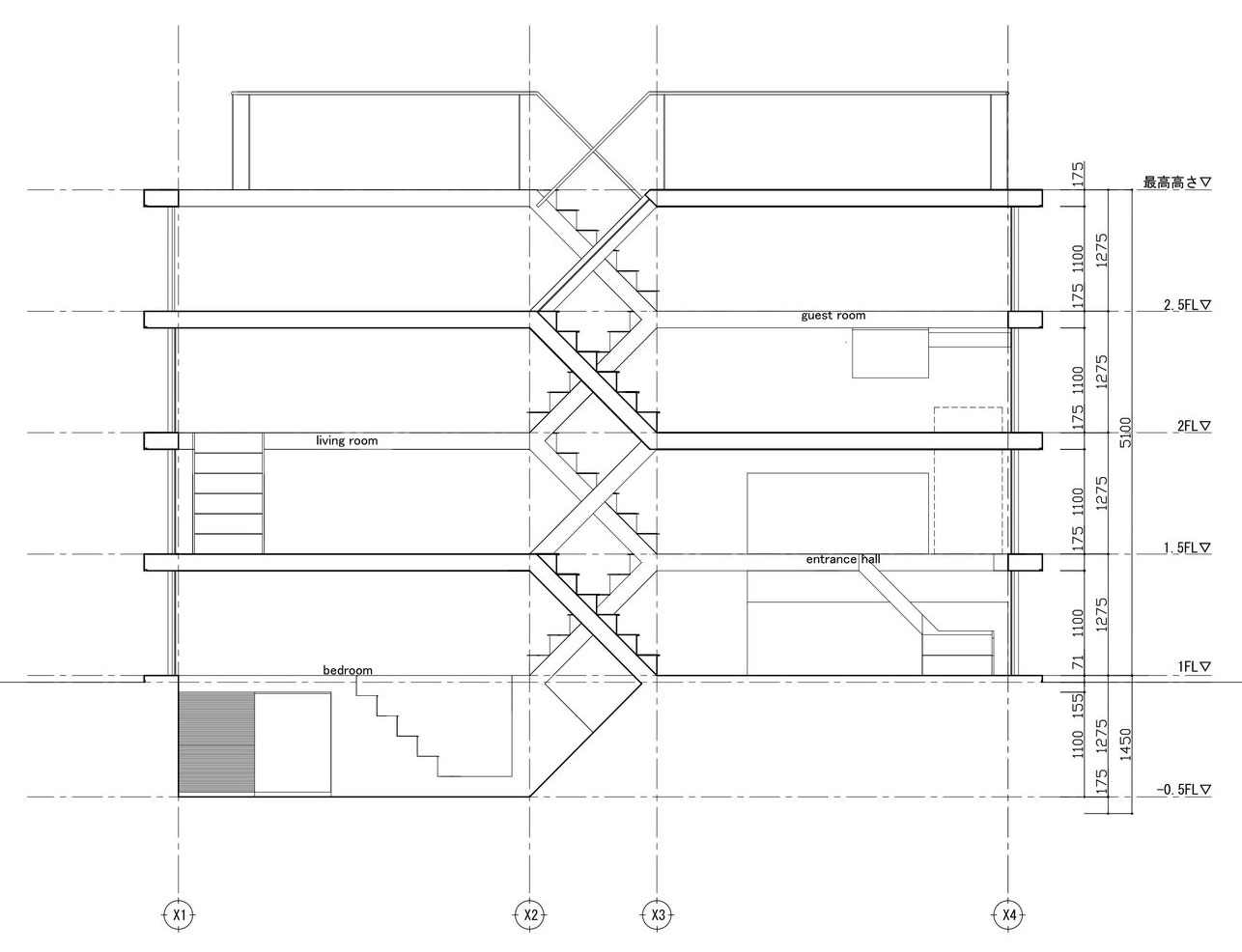
28/29 Images A Stunning and Futuristic House Made From Steel and Glass Elements in Oomiya by Yuusuke Karasawa Architects (28)