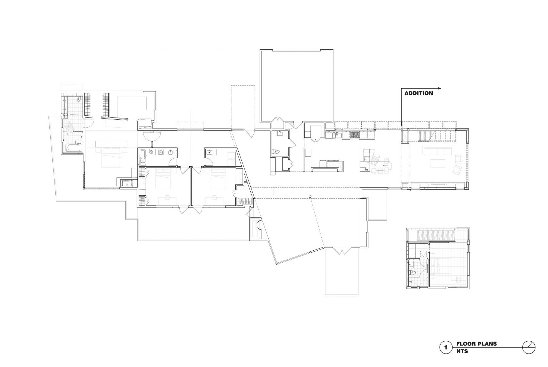
31/34 Images A Bright Contemporary Home Perched Above the Silicon Valley in Los Gatos by Schwartz and Architecture (31)