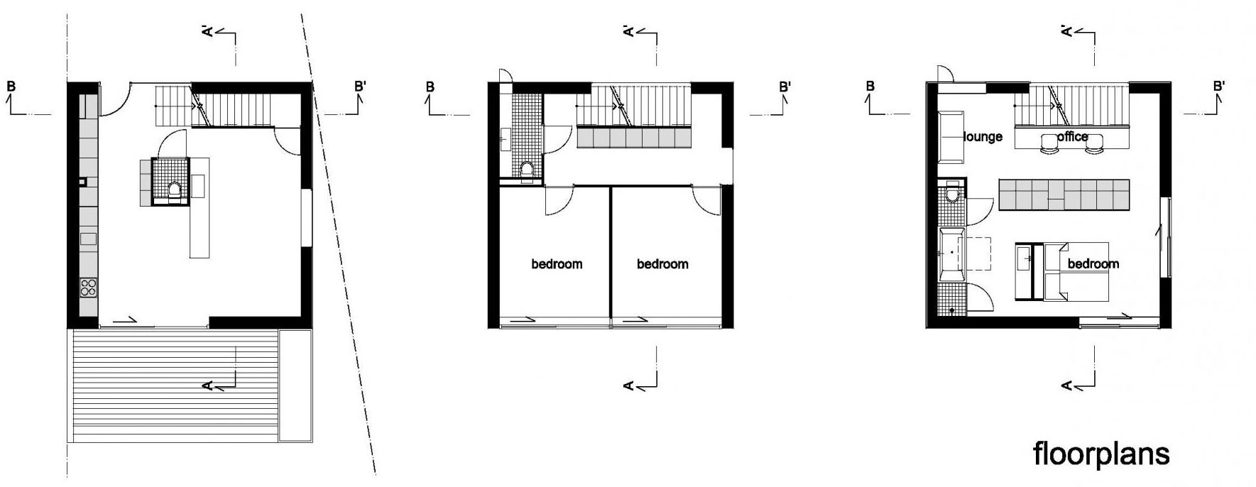
20/27 Images A Spacious Family Friendly Home with Magnificent Views in Almere, The Netherlands by 70F (20)