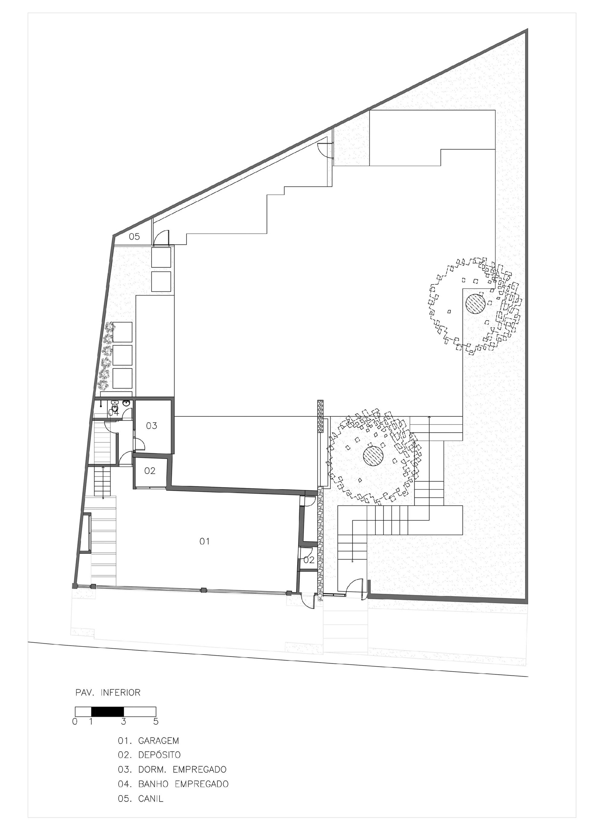
A Spacious Contemporary Home with Elegant Landscaping in Boaçava, Brazil

A Spacious Contemporary Home with Elegant Landscaping in Boaçava, Brazil by Vasco Lopes Arquitetura (14)
14/17 Images