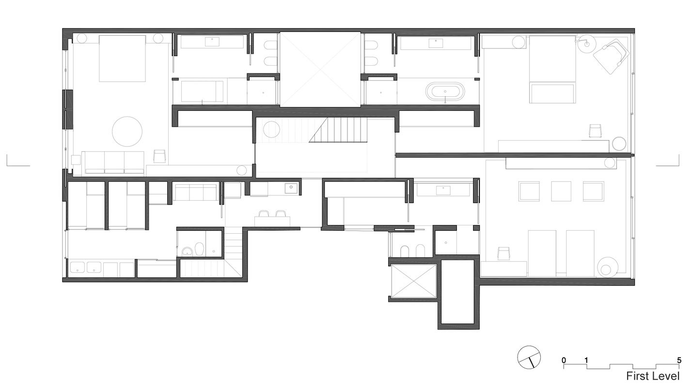
22/25 Images A Stylish Modern Home Sparkles with Classy and Luxurious Interiors in Rio de Janeiro by Studio Arthur Casas (22)