Urca House by Studio Arthur Casas
This penthouse in Rio’s Urca neighborhood has an extraordinary location, between the Sugar Loaf and Guanabara Bay. The client bought an apartment that was in terrible conditions, but with an exceptional potential for transformation. The project was guided by two complementary ideas: to create a pathway of discovery of the landscape on both sides, the bay and the mountain, and to bring as much light as possible to the three floors.
Undoubtedly the element that translates the better this idea is the main staircase. To add a new floor to the original duplex the whole building had to pass through a structural reinforcement. The section shows clearly the relation of the stairs and the landscape, bringing light through zenithal openings to all the floors and directing the view towards the landscape.
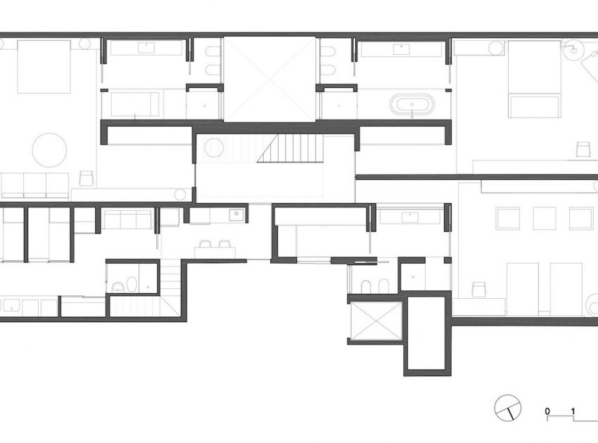
On the 1st floor we have placed the guestrooms, allowing the owners to have as much privacy as possible in their suite on the 3rd floor. Next to the guestrooms are all the service areas including kitchen and staff bedrooms.
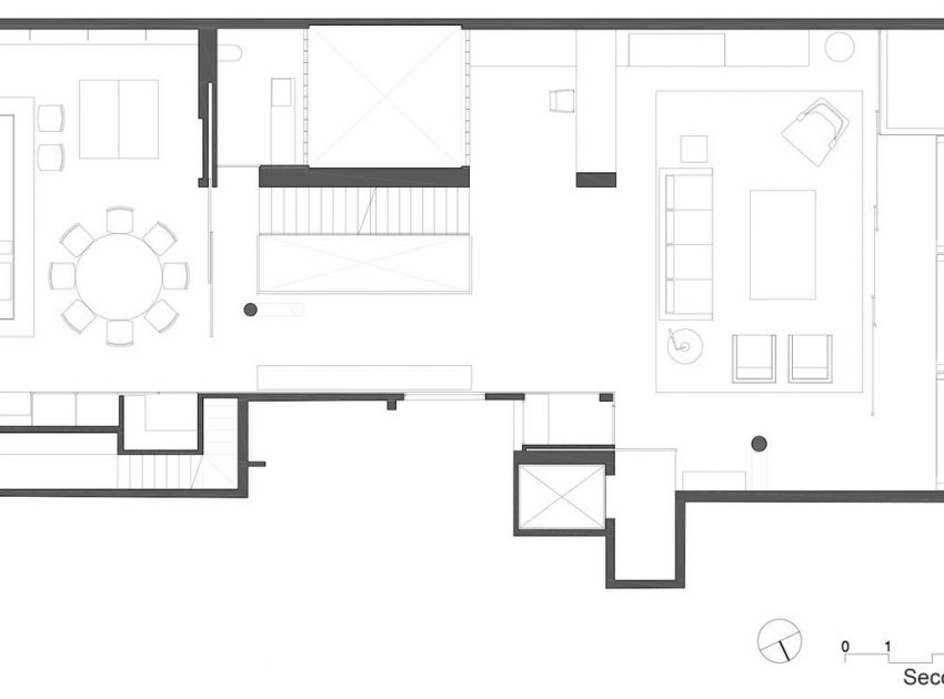
The 2nd floor holds the main entrance next to the elevator. Most of the walls were demolished in order to create a space completely open to the Guanabara Bay. The horizontality of the space accentuates the integration with the landscape. The living room is lit by three openings on the water basin of the last floor, sliding glass doors open completely to the side, allowing total integration between the living room and the terrace. On the other side of this floor a gourmet kitchen receives natural light both from the atrium and a bay window that overlooks the sugar loaf. Both spaces can be divided through sliding doors.
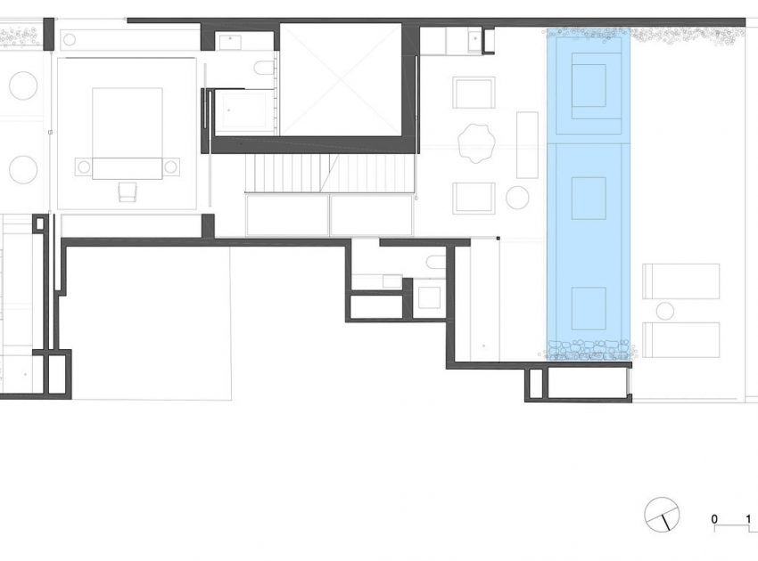
The 3rd floor is divided by the master bathroom with the view directed to the Sugar Loaf on one side and the sauna, barbecue area, water basin and Jacuzzi on the other, looking towards the Corcovado and downtown Rio across the bay.
A Brazilian culture aficionado, the client selected with the Studio all the objects in the house, forming a vast collection of modernist design represented by names such as Sérgio Rodrigues, Jorge Zalszupin, Ricardo Fasanello and Jean Gillon, there are also several contemporary artworks and local pieces of craftsmanship.
The plan of the apartment is simple; our intention was to have fluidity between the floors, creating continuous pathways that accentuate the relation between architecture and an extraordinary landscape.
Photos by: Studio Arthur Casas & Fernando Guerra I FG+SG
View more: A Spacious Contemporary Home with Airy Interior and Vast Gardens in London
Related: A Colorful Modern Home with Simple and Beautiful Lines in Waratah Bay
Here: A Modern Home Surrounded by Rolling Dunes with Strips of Canvas in Amagansett
Read also: A Striking Contemporary Home Overlooks a Natural Cove in Begur, Spain
Next: A Bright Contemporary Red Home Consists of Two Volumes Connected by a Wide Corridor in Ponta Delgada
Check out: A Contemporary Home Enfolded by Steel, Concrete and Wood Elements in Tunuyán
Read more: An Elegant Contemporary Home with Beautiful Cafe and Music Room in Chiang Mai, Thailand
See also: A Stunning Concrete Beach House Takes Cues from the Rocky Landscape of Aguadulce, Chile












