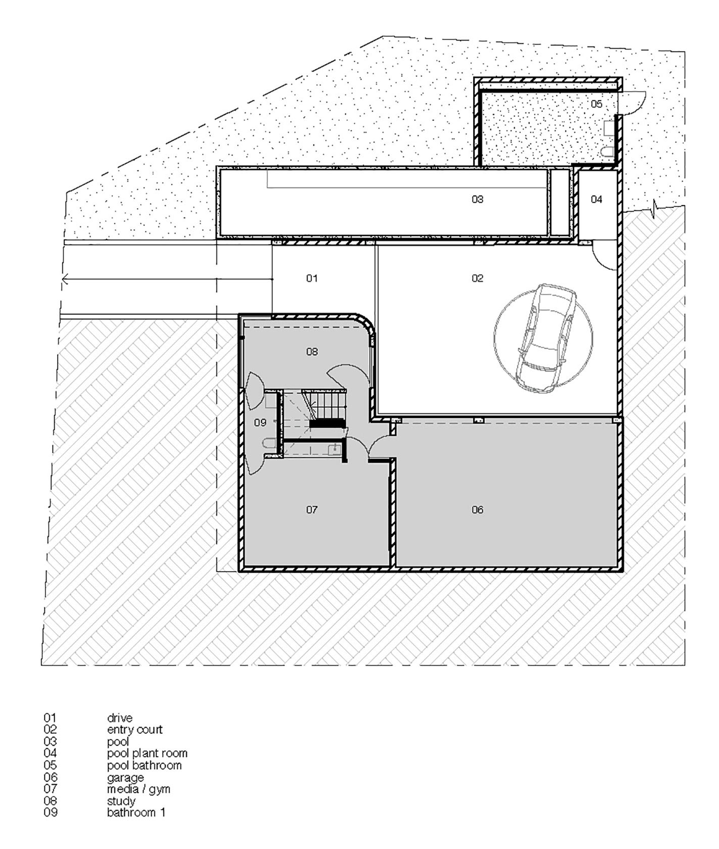
10/15 Images A Contemporary Home with Combination of Concrete and Glass Materials on Herne Bay Road by Daniel Marshall Architects (10)