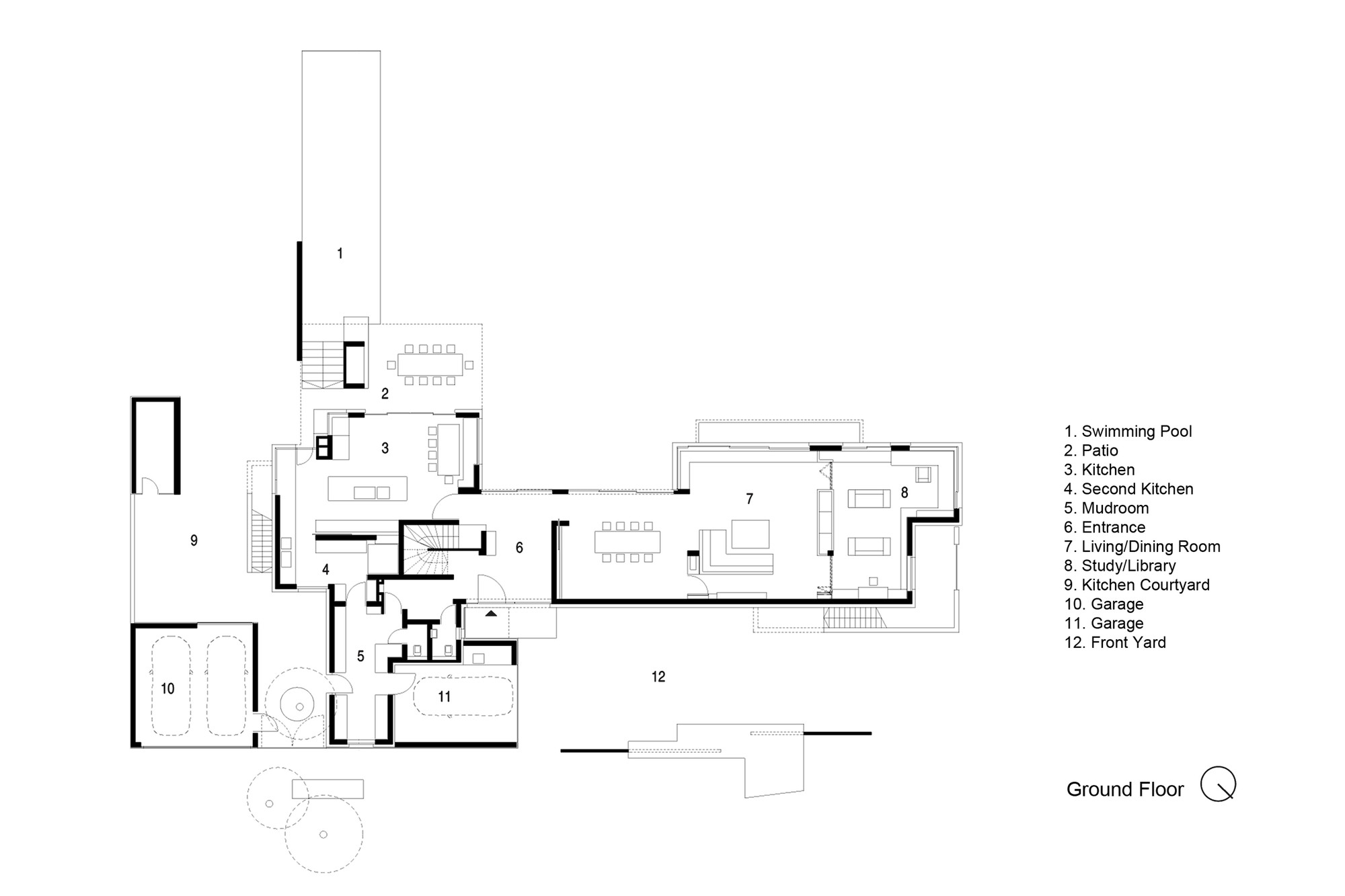
11/14 Images A Stylish L-Shaped Contemporary Home for a Young Family in Munich by Stephan Maria Lang (11)