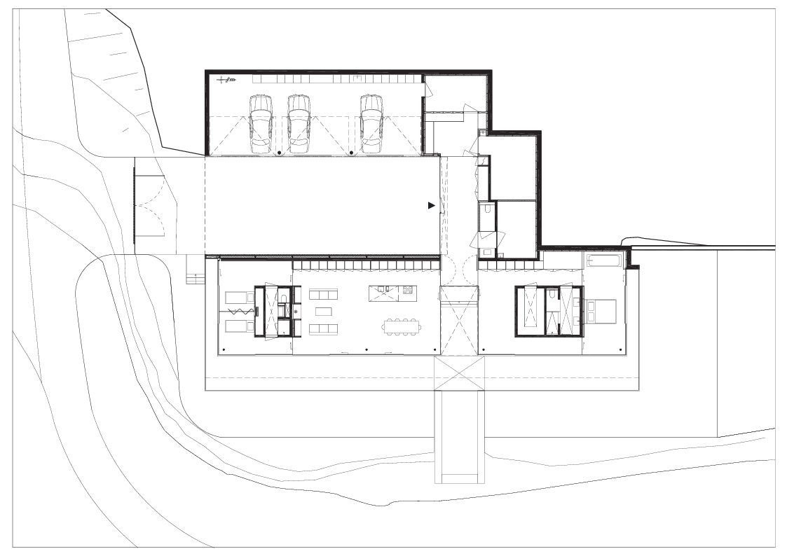
15/19 Images A Contemporary House with Lots of Glass, Steel and Concrete in Thuringia, Germany by Paul de Ruiter Architects (15)