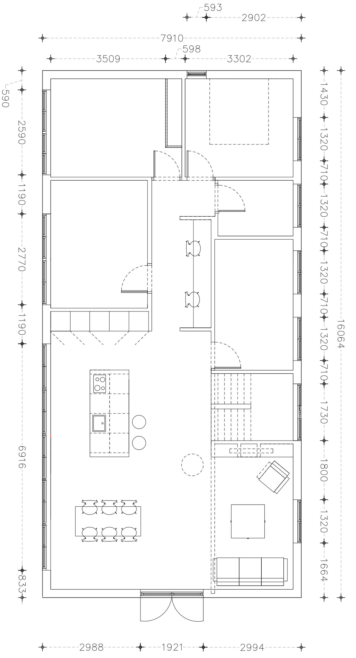
19/22 Images A Beautiful Contemporary Home on a Sloping Forest Lot in Copenhagen, Denmark by NORM Architects (19)