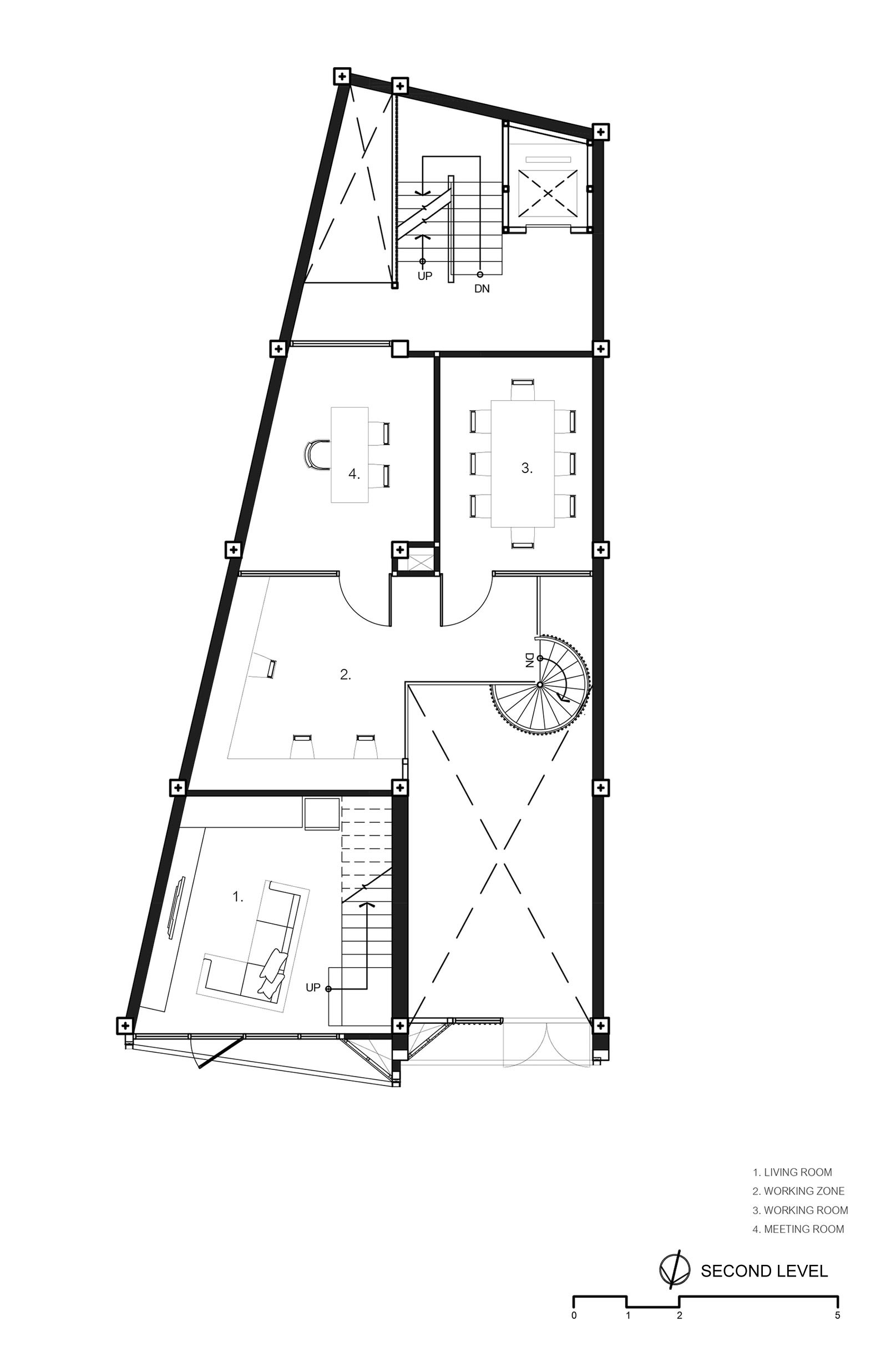
32/46 Images A Spacious and Stylish Modern House for a Big Family in Suriya Wong, Thailand by IDIN Architects (32)