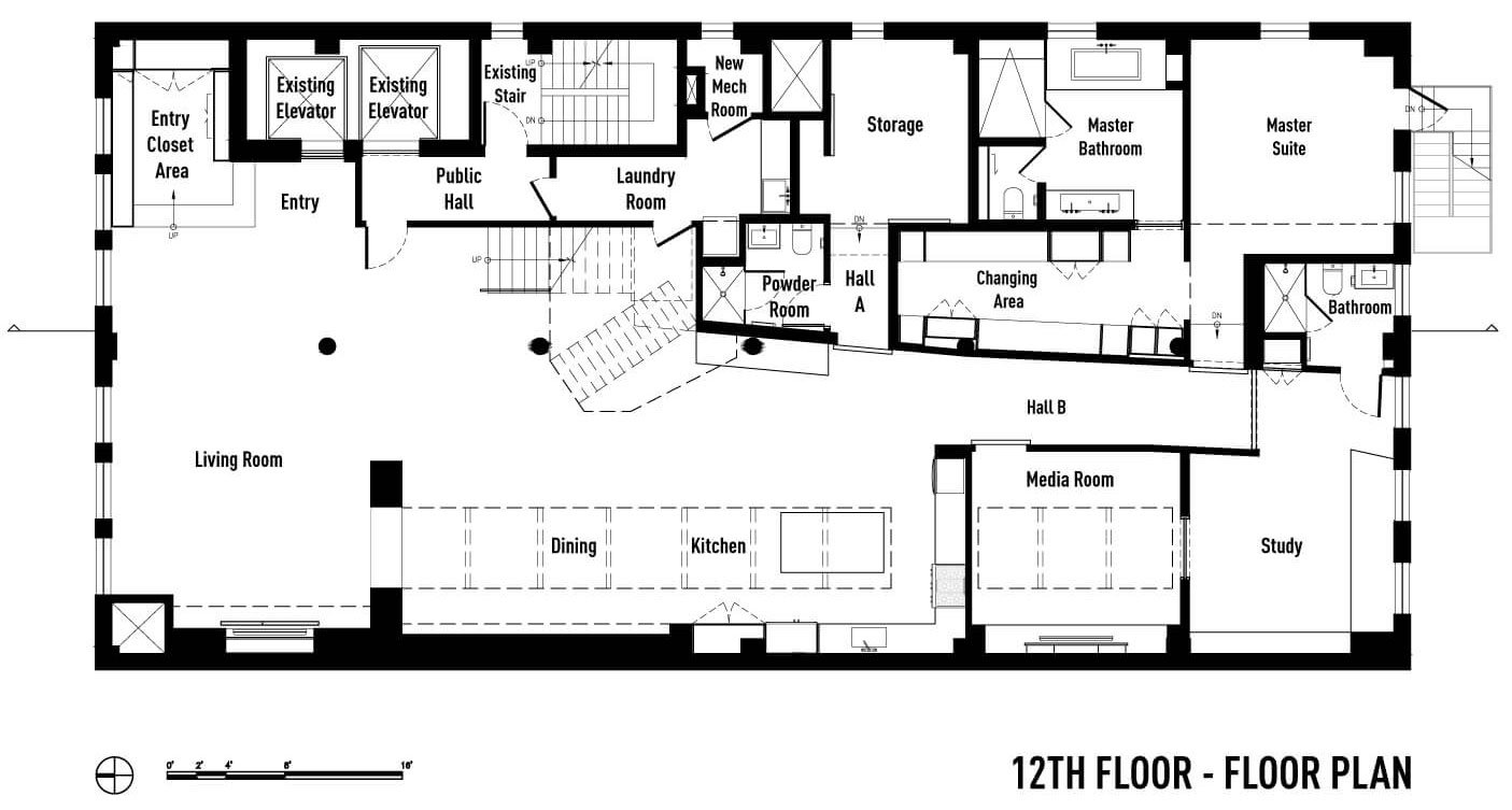
13/15 Images A Stylish Apartment with a Reclaimed Mosaic Wall Tile in New York City by Charles Rose Architects (13)