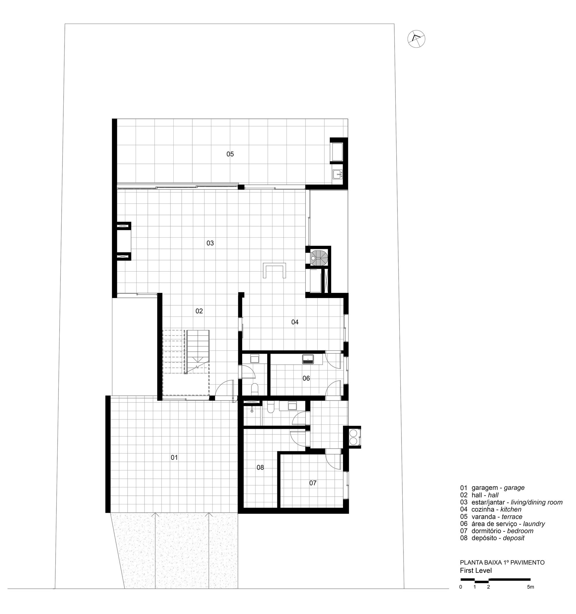
31/33 Images A Spacious and Warm Contemporary Home for a Young Family with Two Children in Xangri-lá, Brazil by Seferin Arquitetura (31)