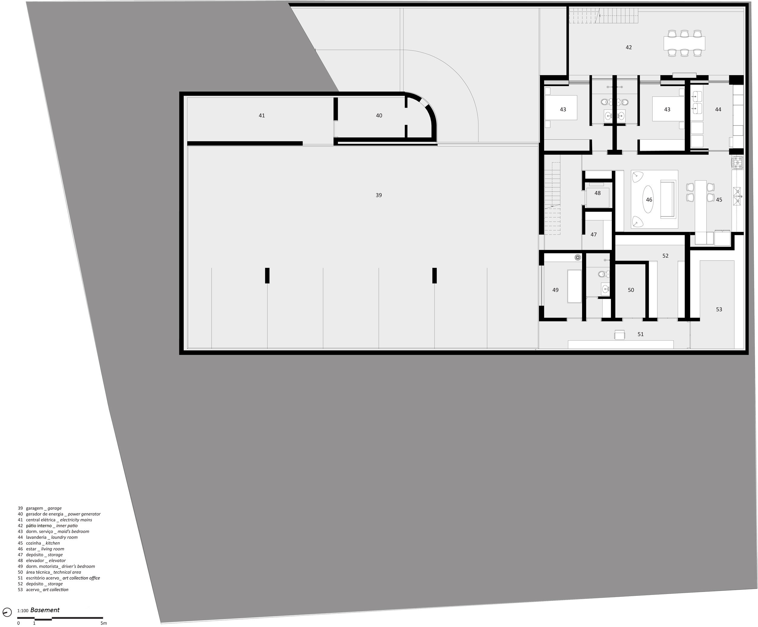
41/47 Images A Swanky and Elegant Modern House with Natural and Raw Materials in São Paulo by Studio mk27 (41)