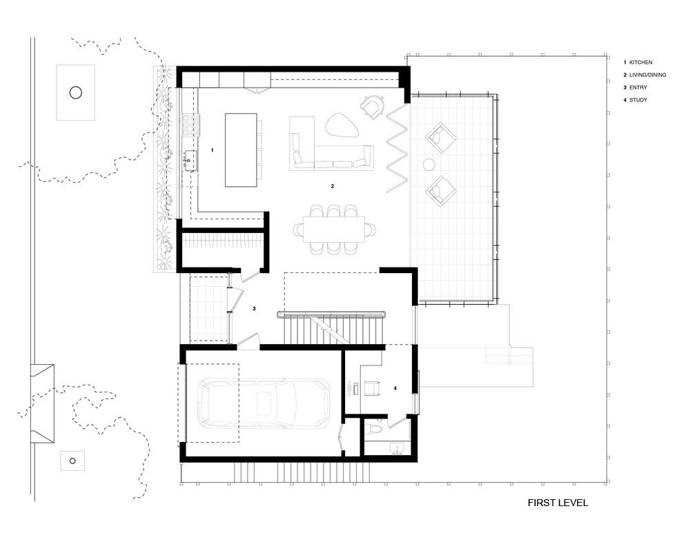
16/19 Images An Old Cottage Transformed into a Contemporary Home for a Research Scientist in San Francisco by Studio Vara (16)