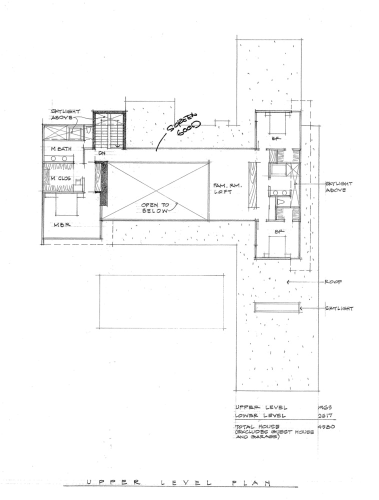
31/31 Images A Stunning Contemporary Home with Dramatic Pool and Vineyard Views in Windsor, California by Swatt | Miers Architects (31)