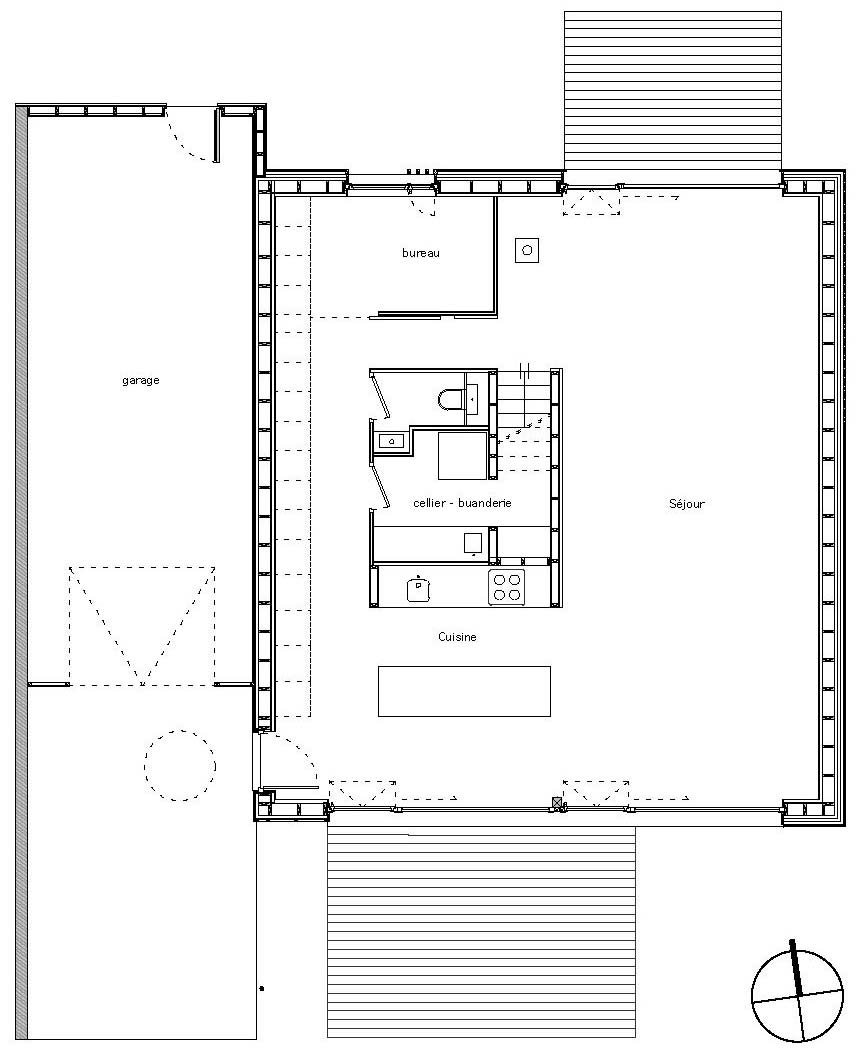
A Stunning Bioclimatic House with Prefabricated Modular System and Thick Walls in Lyon, France

A Stunning Bioclimatic House with Prefabricated Modular System and Thick Walls in Lyon, France by Tectoniques Architects (8)
8/11 Images