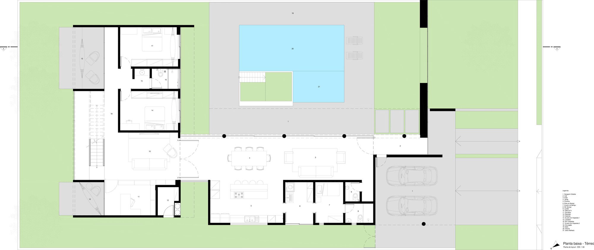
15/17 Images A Bright and Spacious Contemporary Home with Overflowing Pool in Brasilia by Esquadra|Yi (15)