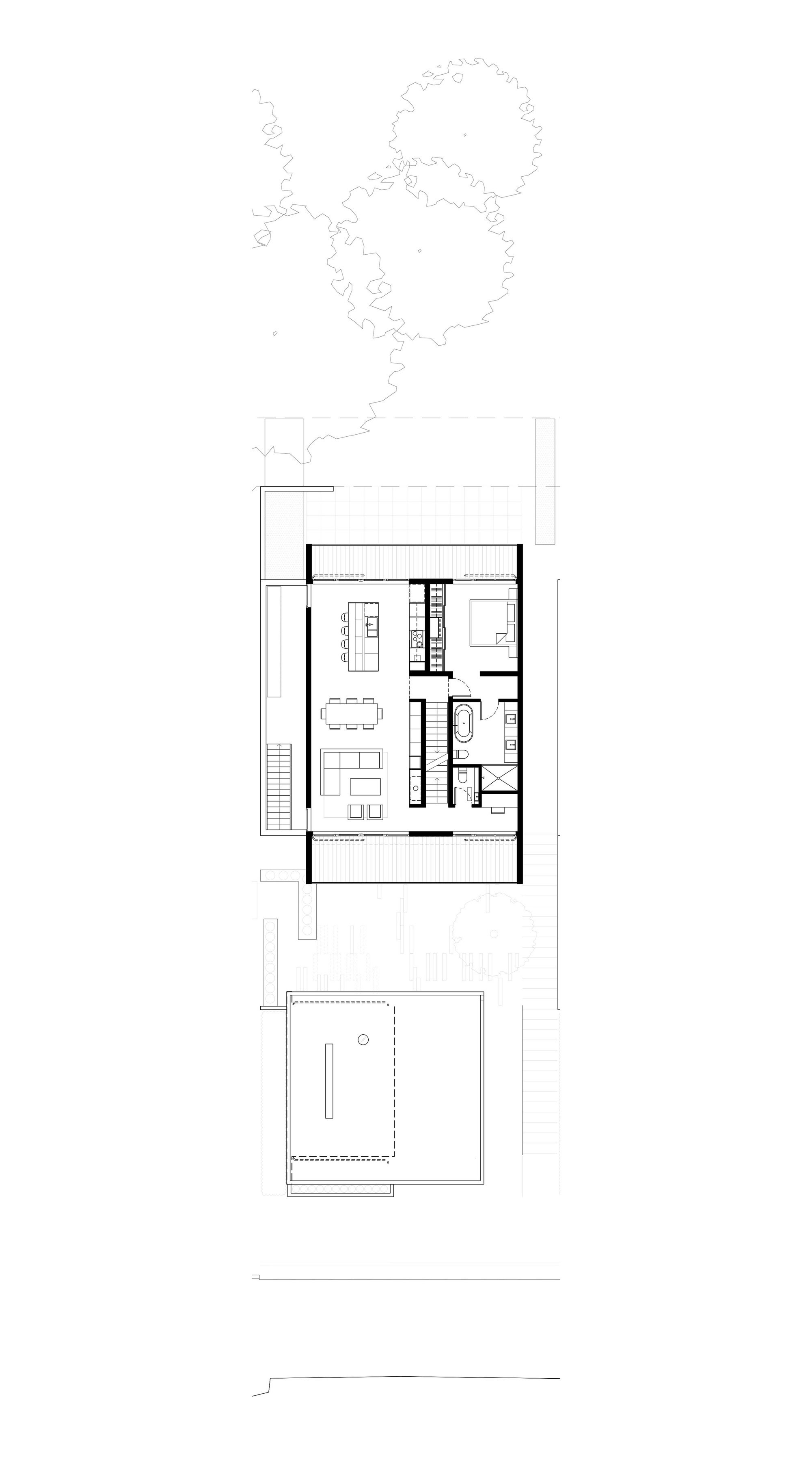
17/18 Images A Stylish Contemporary Home with Unique Character in North Vancouver by office of mcfarlane biggar architects + designers (17)