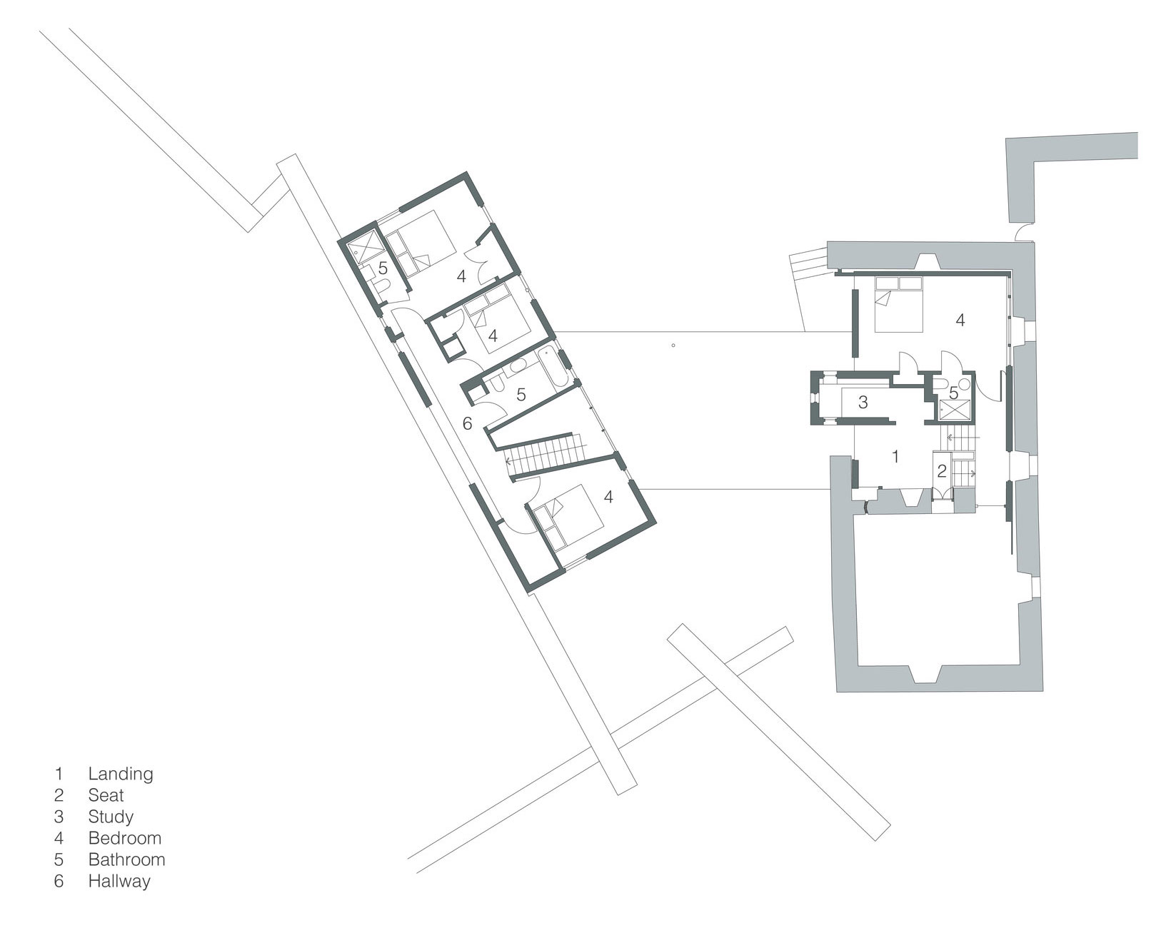
14/14 Images A Scottish Ruins Transformed Into an Exquisite Modern Home on the Isle of Coll by WT Architecture (14)