The White House by WT Architecture
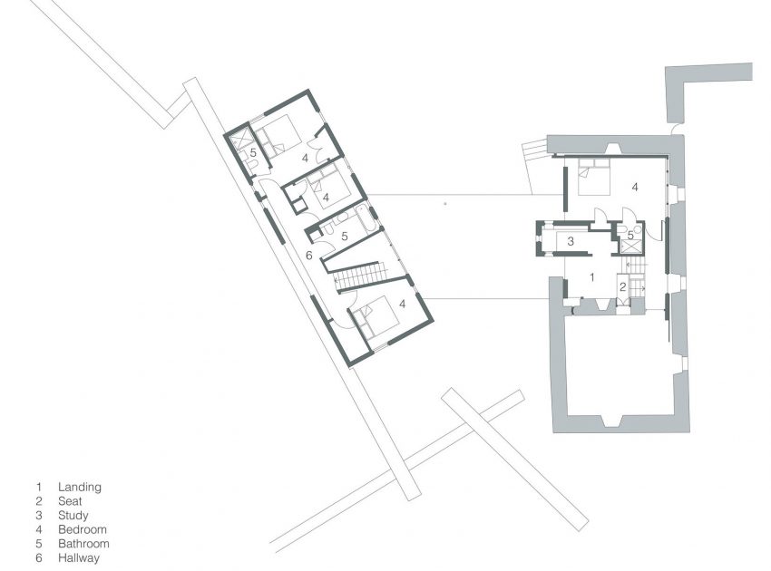
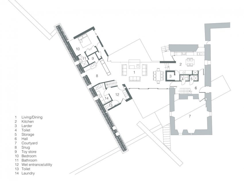
A new house in and around the ruins of ‘The White House’ where Boswell and Johnston visited during their tour of the Hebrides in 1773. The spectacularly cleft ruin is to be consolidated and only partly occupied. A glazed living room link connects a wing of domestic accommodation to the west, which is sheltered by a massive dry stone wall that extends into the landscape, extending the ancient patterns of enclosure analysed in the drawing above left. The building was completed in late June 2010.
The House Design Project Information:
- Project Name: The White House
- Location: Grishipoll, Isle of Coll, Argyll and Bute, Scotland
- Type: Modern House
- Area: 300 m²
- Designed by: WT Architecture
- Project Year: 2011
Photos by: WT Architecture & Andrew Lee
View more: An Elegant Contemporary Home in the Heart of the Mediterranean Village of Zejtun, Malta
Related: A Spacious Contemporary House with Stunning and Elegant Interiors in Selangor, Malaysia
Here: An Elegant Contemporary Home Flooded with Natural Light in London
Read also: A Contemporary Glass Home Composed of Two Geometric Concrete Volumes in Mexico City
Next: A Stunning and Comfortable Contemporary Home Overlooking the Hills of Saltregna












