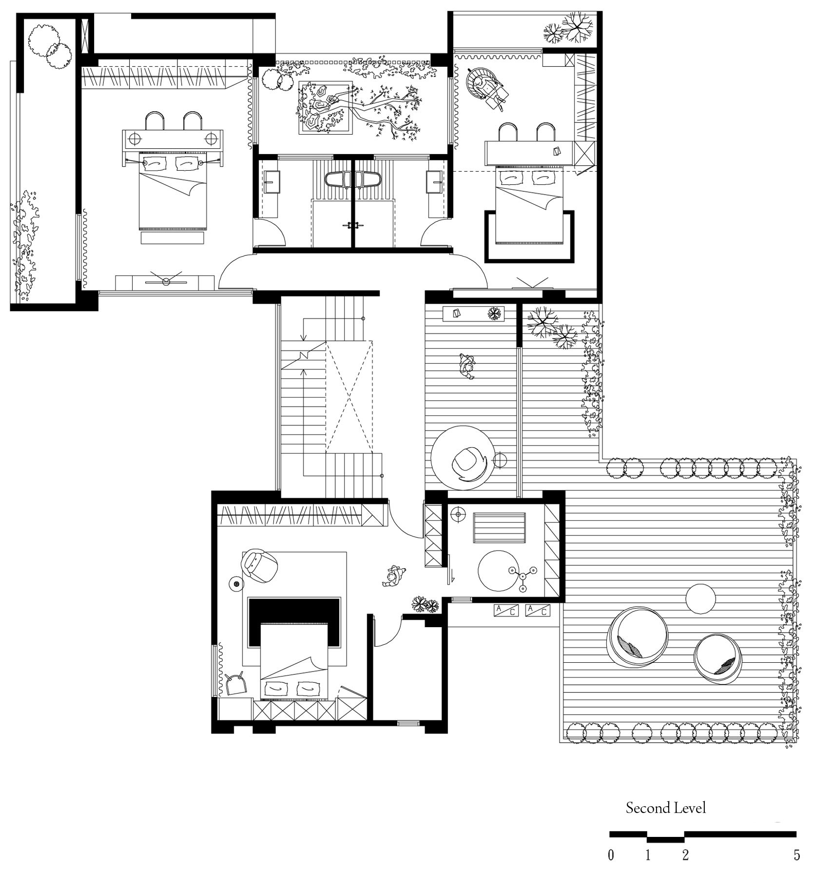
60/63 Images A Stylish Contemporary Home Full of Elegant Simplicity in Yun-Lin County, Taiwan by MORI design (60)