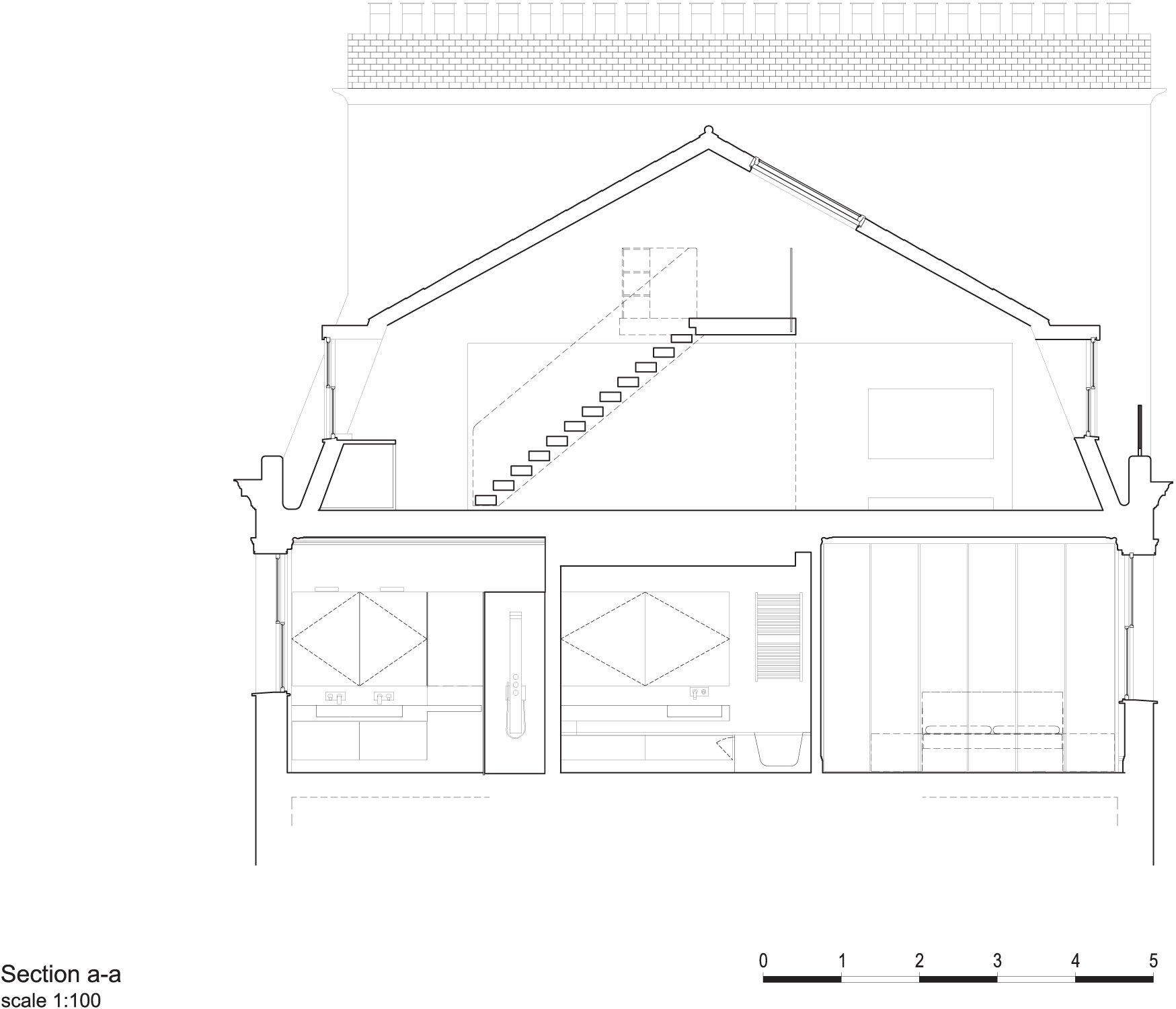
49/51 Images A Bright Modern Maisonette Apartment in the Heart of Maida Vale by Daniele Petteno Architecture Workshop (49)