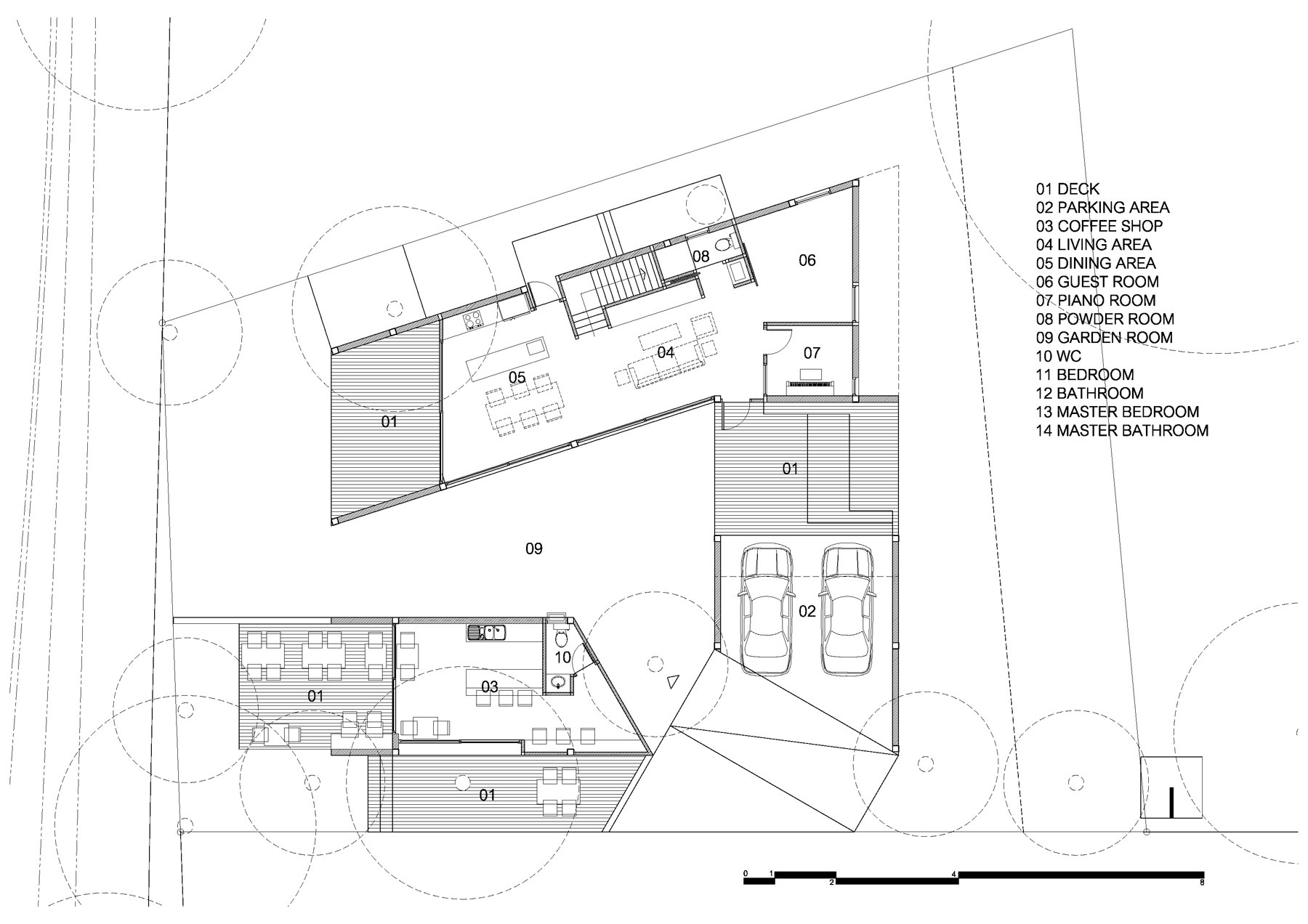
18/24 Images An Elegant Contemporary Home with Beautiful Cafe and Music Room in Chiang Mai, Thailand by EKAR & Full Scale Studio (18)