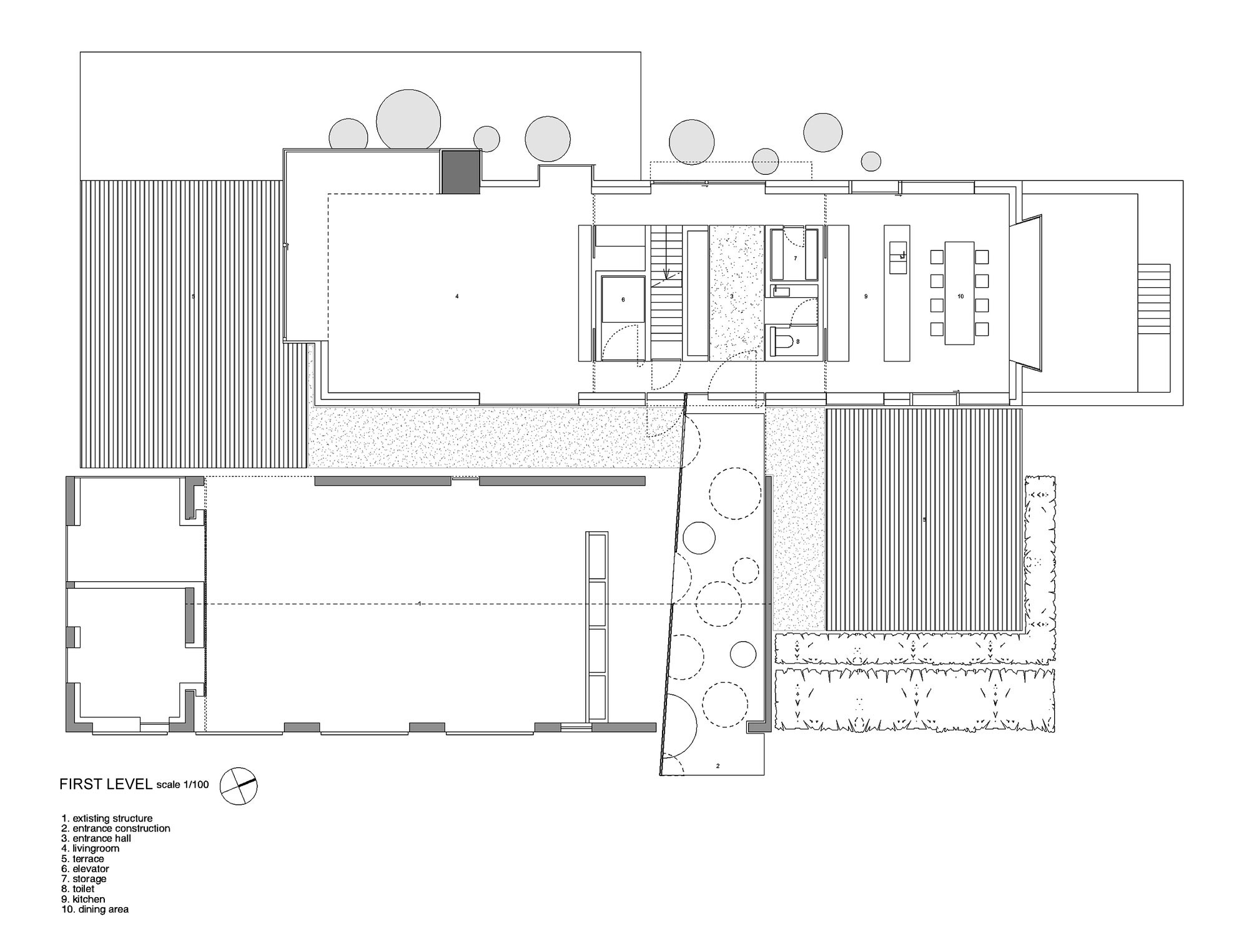
12/14 Images A Striking Minimalist Home Supported by Natural Light and Splendid Views in Balen, Belgium by Pascal François Architects (12)