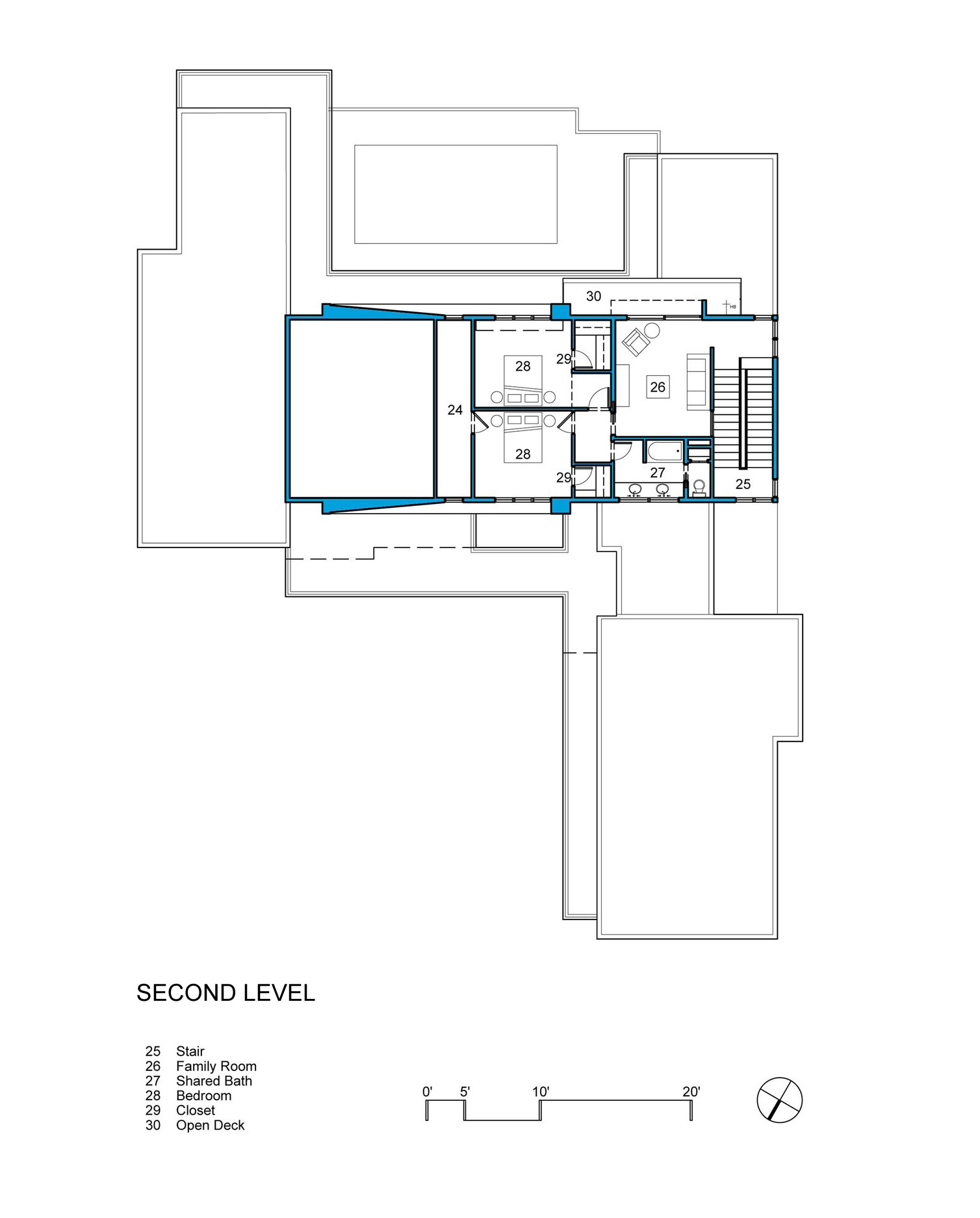
22/22 Images A Sophisticated Contemporary Home with Luxury Modern Interiors in Austin by Clark Richardson Architects (22)