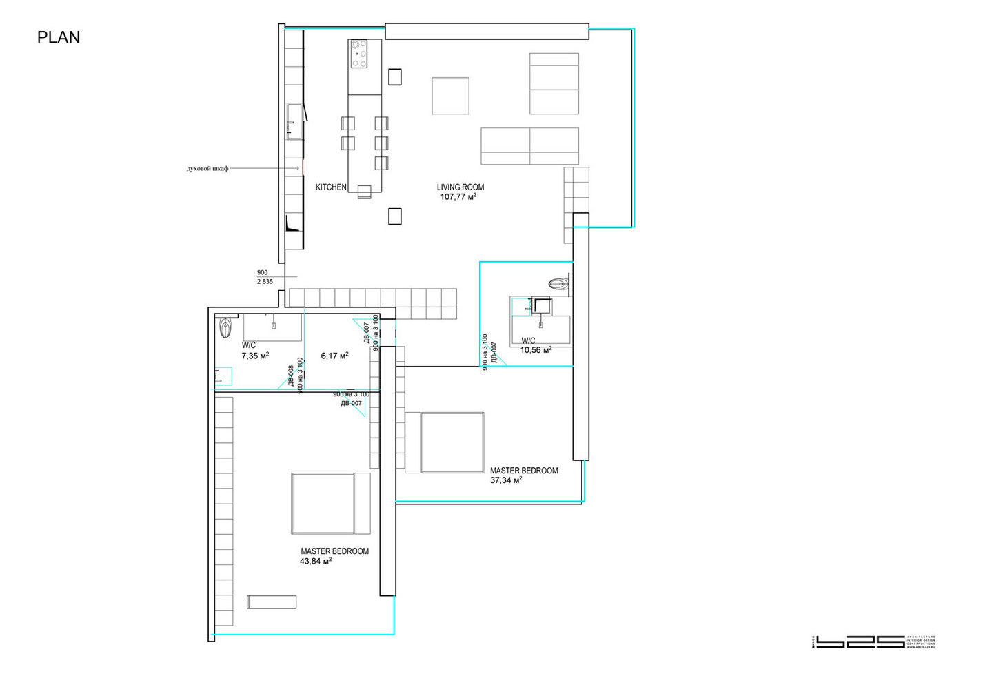
26/26 Images A Stylish Apartment with Concrete Walls and Glass Elements in Moscow, Russia by ARCH (26)