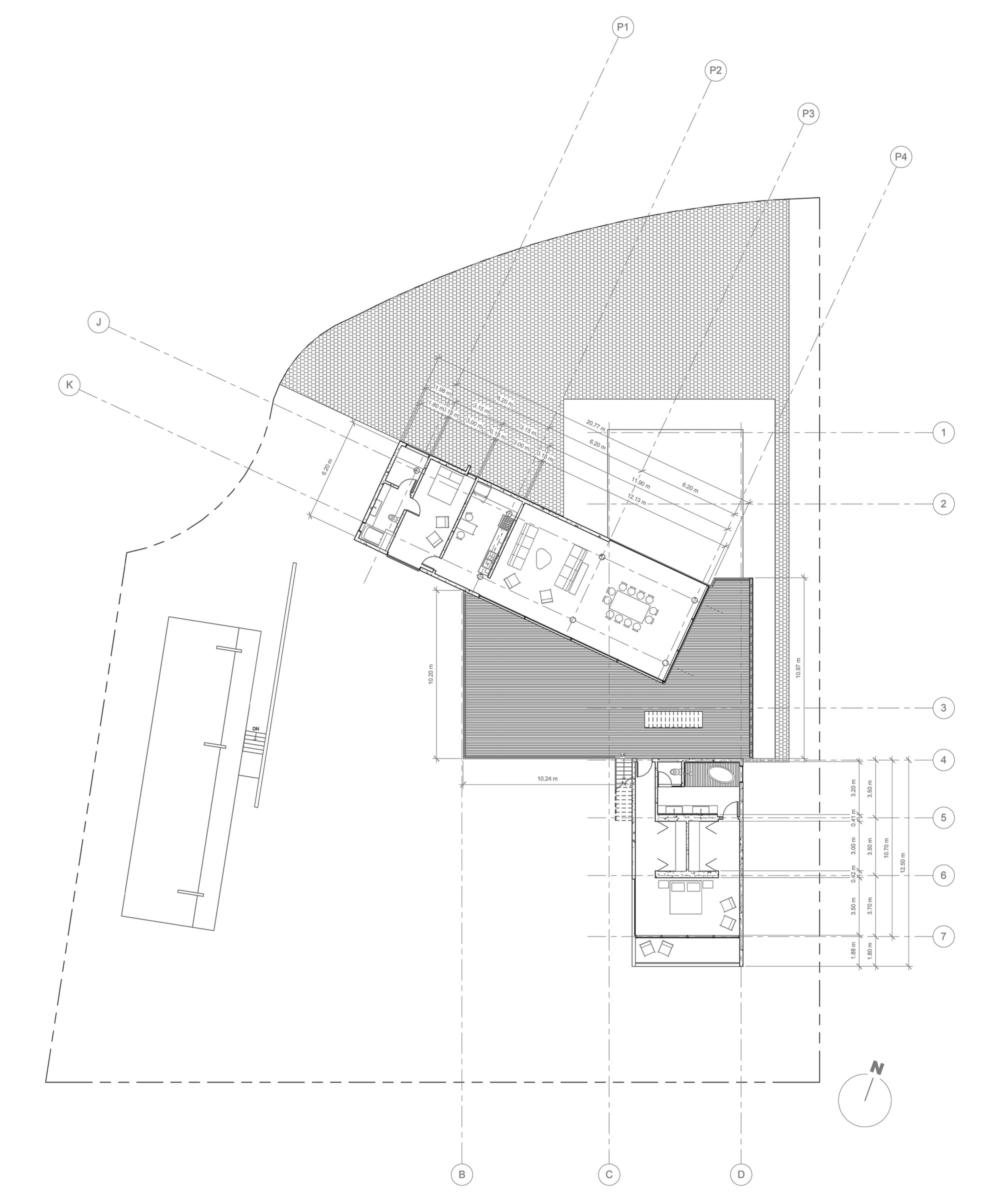
18/23 Images A Modern Concrete Beach House Surrounded by a Lush Green Expanse of Guerrero, Mexico by PAUL CREMOUX studio (18)