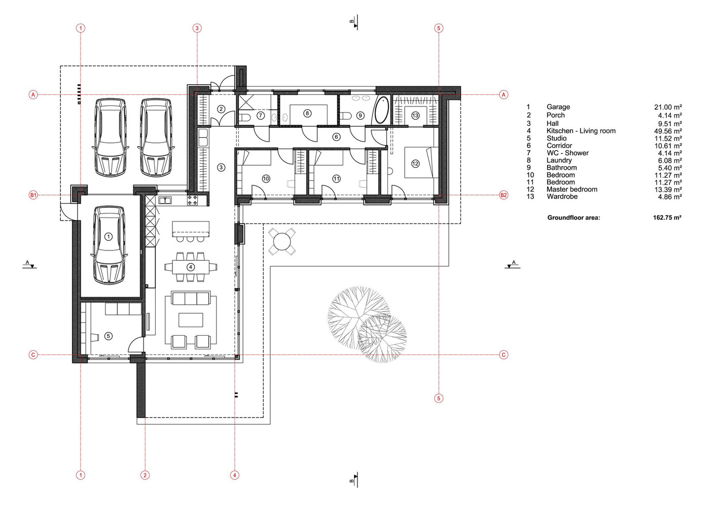
16/17 Images A Bright Modern L-Shaped Home Blends with Stunning Natural Surroundings in Vilnius, Lithuania by ArchLAB studio (16)