Meadow House by ArchLAB studio
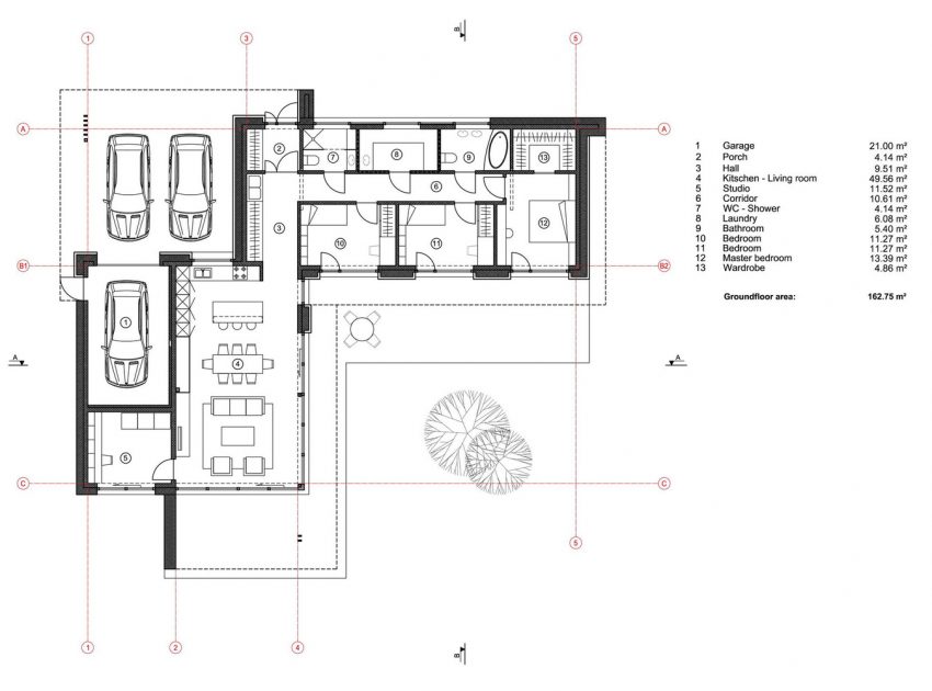
Modern Meadow House is designed away from the city noise, out of the urban areas. The architectural challenge was to incorporate a new house into an existing natural meadow as much as possible. The natural surroundings of nature-inspired home solutions. Single-floor house architecture is close to human and nature scale, developing a connection, private relation between them. The L-shaped house plan separates the patio from the street.
All living spaces are facing the yard. Bedrooms planned separately from the guest spaces. Living room, kitchen, dining room with an outdoor terrace is designed with high ceilings. Large windows connect the interior and exterior spaces, which creates a cozy and calm atmosphere for residents and their guests.
Much attention has been devoted to supplementing the design with subtle landscaping, open fireplace, and wooden terraces, where you can relax listening to the sound of nature, enjoy a wonderful meadow view. Nature is a very valuable feature in architecture, especially nowadays when urbanisation is increasing around the globe.
Photos courtesy of ArchLAB studio &Leonas Garbačauskas
View more: A Simple Contemporary Home with Open Spaces and Full of Natural Light in Orinda
Related: A Stunning Contemporary Home with Two Large Cantilevers in Guadalajara, Mexico
Here: An Elegant Contemporary Home with Vertical Structure in Chicago
Read also: A Spacious Contemporary Wooden Home with Cedar Walls Inside and Out in Poznań
Next: A Cozy and Sophisticated Wood-Clad Home Sits on the Mountainside in Park City, Utah
Check out: An Old Bungalow Transformed into a Spacious and Light Contemporary House in Hilversum, The Netherlands












