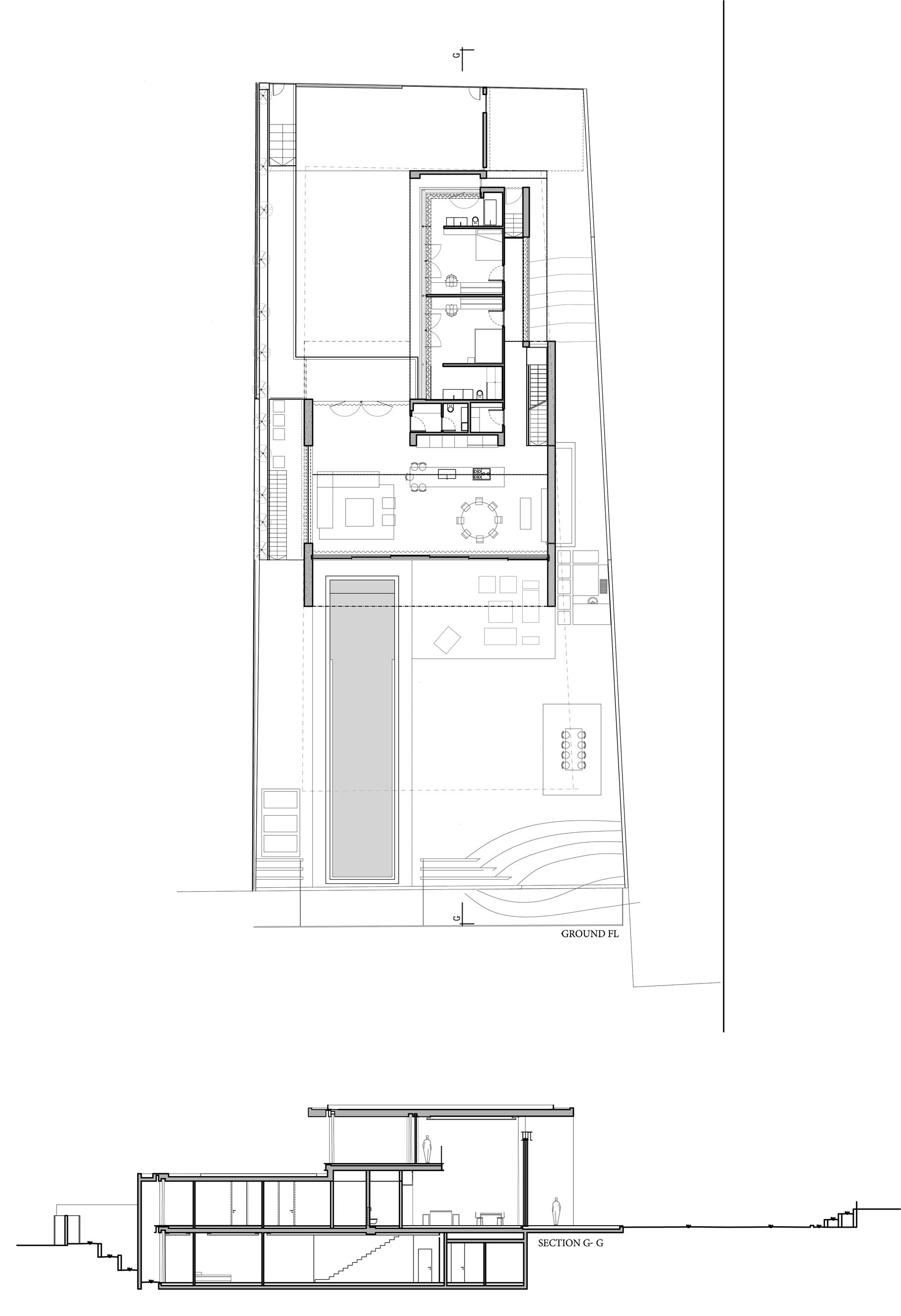
28/28 Images An Elegant Modern House Amid Two Courtyards with Natural Light in Ramat HaSharon by Pitsou Kedem Architects (28)