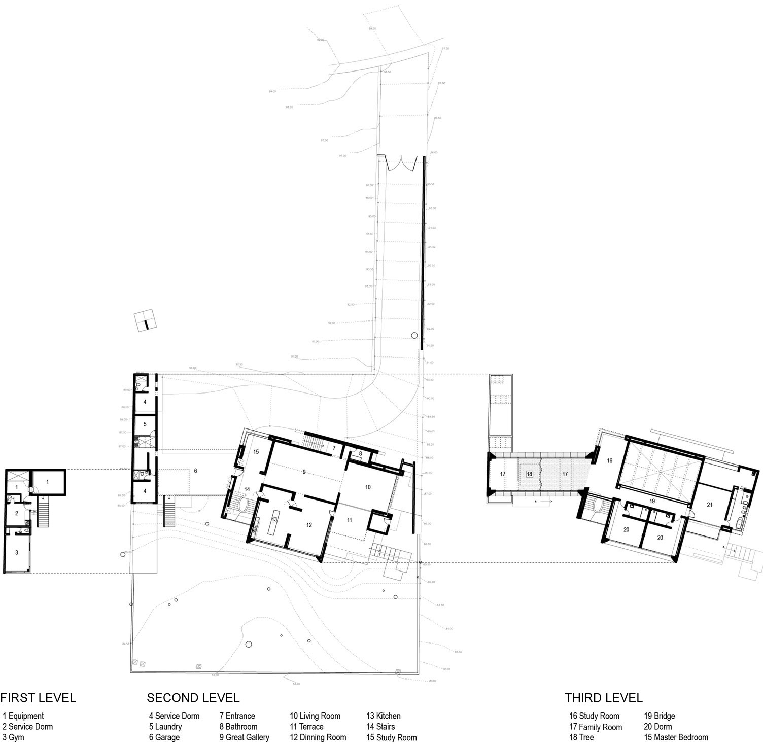
16/18 Images A Stylish Modern House Surrounded by Forests and Tall Trees in Guatemala City by Solis Colomer Arquitectos (16)