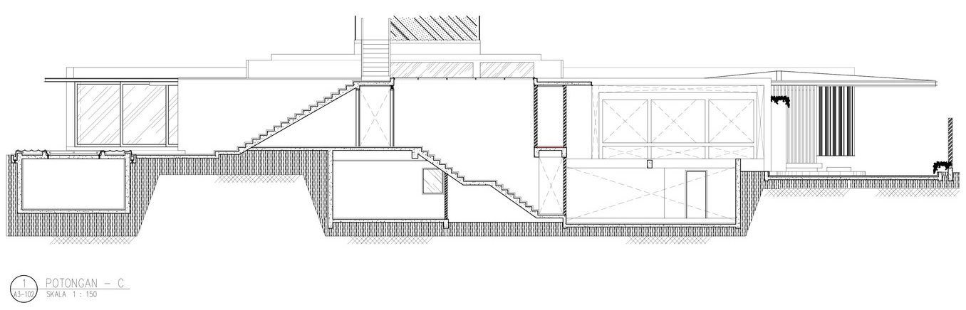
22/23 Images A Stylish and Stunning Contemporary Home with Lap Pool in Bali, Indonesia by Parametr Architecture (22)